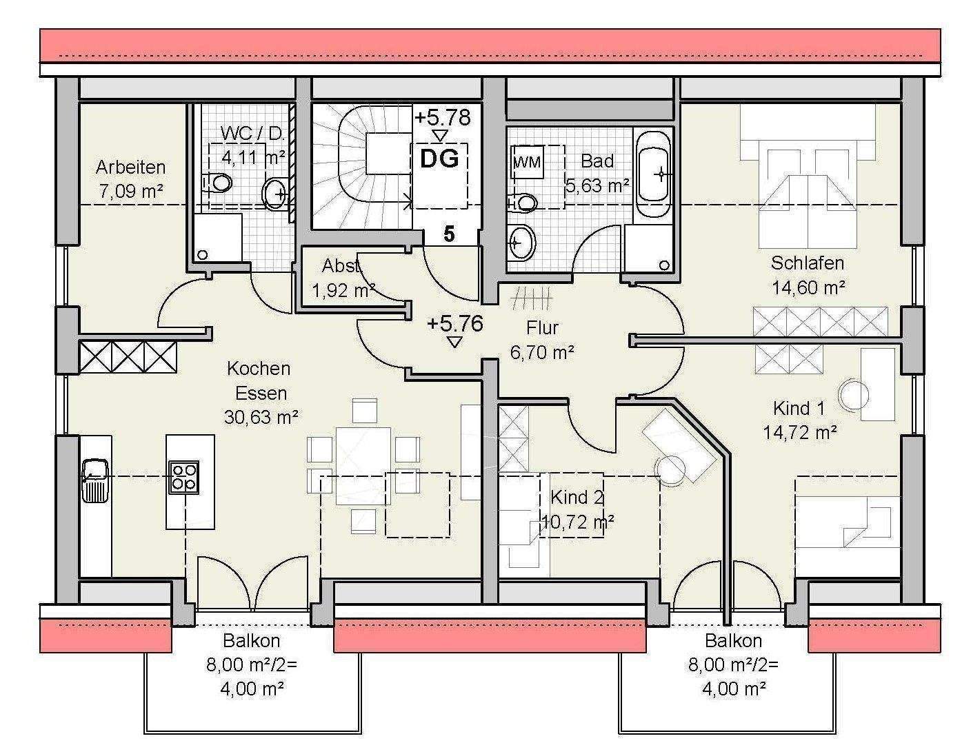
3 ZKB DG ERSTBEZUG Neubau, großer Balkon, Fernblick

Kaufpreis 304.000 €
Zimmer 3
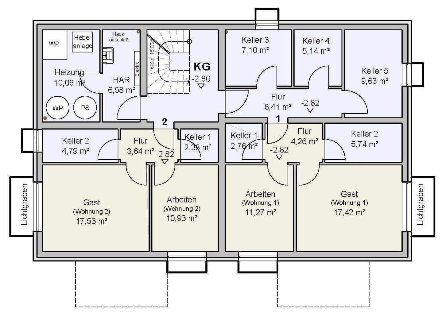
Größe 57 m²
86405 Meitingen

Objektdaten

Veröffentlicht am: 19. März 2026
Baujahr: 2026
Energieausweis: Liegt bei der Besichtigung vor
Neu

Über ähnliche Angebote direkt informiert werden

  • Objektbeschreibung

    So funktioniert es

    • Alle neuen Anzeigen matchen wir kostenlos mit Deinen Suchparametern.
    • Passende Angebote senden wir Dir in einer E-Mail pro Tag.
    • Du kannst auch verschiedene Suchen anlegen und Dich jederzeit abmelden. Mehr dazu
    Nach oben scrollen