Objektdaten
Objektbeschreibung
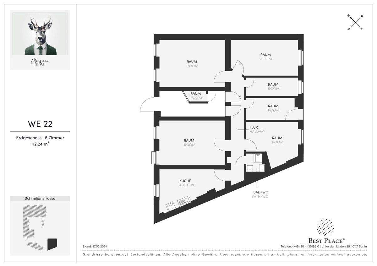
Monsieur Hirsch ist ein elegantes Gründerzeit-Ensemble mit Baujahr 1900. Es liegt im schönen und idyllischen Friedenau im Bezirk Tempelhof-Schönberg, der zwei Hirsche in seinem Wappen führt. Die in Braun und Grün gehaltene Klinkerfassade erinnert außerdem an die Bewohner des Waldes, der mit dem Grunewald ganz in der Nähe liegt. Das vierstöckige Ensemble besteht aus einem Vorderhaus, einem Seitenflügel, einem Hinterhaus und einer Remise im Innenhof. Auf vier Etagen liegen 26 Wohnungen mit 1 bis 6 Zimmern und ca. 49 bis 151 m²; ein Großteil davon sind 3-Zimmer-Wohnungen. Tageslichtbäder und Balkone sorgen für hohen Wohnkomfort und eine gute Vermietbarkeit.Die bezugsfreien Wohnungen wurden hochwertig und behutsam saniert. Sie haben ihren Gründerzeit-Charme behalten und verbinden ihn mit modernem Wohnkomfort. Derzeit werden die Fassade und die Treppenhäuser renoviert und erstrahlen schon bald in neuem Glanz. Zudem wird ein Neubau-Dachgeschoss aufgesetzt, in dem weitere Wohnungen entstehen.Ähnliche Angebote
So funktioniert es
- Alle neuen Anzeigen matchen wir kostenlos mit Deinen Suchparametern.
- Passende Angebote senden wir Dir in einer E-Mail pro Tag.
- Du kannst auch verschiedene Suchen anlegen und Dich jederzeit abmelden. Mehr dazu




