Objektdaten
Objektbeschreibung
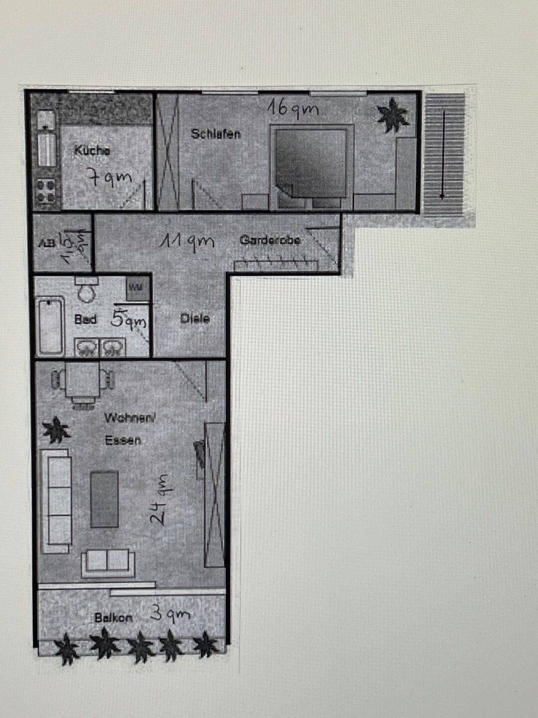
Objektbeschreibung Diese Wohnung befindet sich in unserer neu erbauten Mietwohnanlage "Schwabachterrassen". Die insgesamt 29 Wohnungen verteilen sich auf 4 Häuser, die mit Laubengängen miteinander verbunden sind. Die Wohnung verfügt über einen Balkon, Tageslichtbadezimmer mit Waschmaschinen- und Trockneranschluss und einer Einbauküche. Gesonderte Wasch- und Trockenräume (im Keller) sind nicht vorhanden.In allen Räumen befindet sich ein Designboden in Holzoptik (außer Badezimmer). Die Küche ist als offener Bereich in das Wohn-Esszimmer integriert. Die Anlage verfügt über eine Tiefgarage mit einem extra Abstellraum für Fahrräder, Kinderwagen u.ä.. Zentrale E-Ladeeinrichtungen zur gemeinschaftlichen Nutzung sind vorhanden.Jede Wohnung verfügt über einen Glasfaseranschluss von M-net für Telefonie, Internetzugang und TV-Versorgung.Die Wohnung kann zum 01.05.2026 bezogen werden. Raumaufteilung Großzügige Diele und FlurTageslichtbadezimmer mit Dusche und Waschmaschinenanschlussoffene Küche im Wohn-/EsszimmerSchlafzimmer Balkon mit Zugang vom Wohn- und Schlafzimmer siehe GrundrissplanÄhnliche Angebote
So funktioniert es
- Alle neuen Anzeigen matchen wir kostenlos mit Deinen Suchparametern.
- Passende Angebote senden wir Dir in einer E-Mail pro Tag.
- Du kannst auch verschiedene Suchen anlegen und Dich jederzeit abmelden. Mehr dazu





