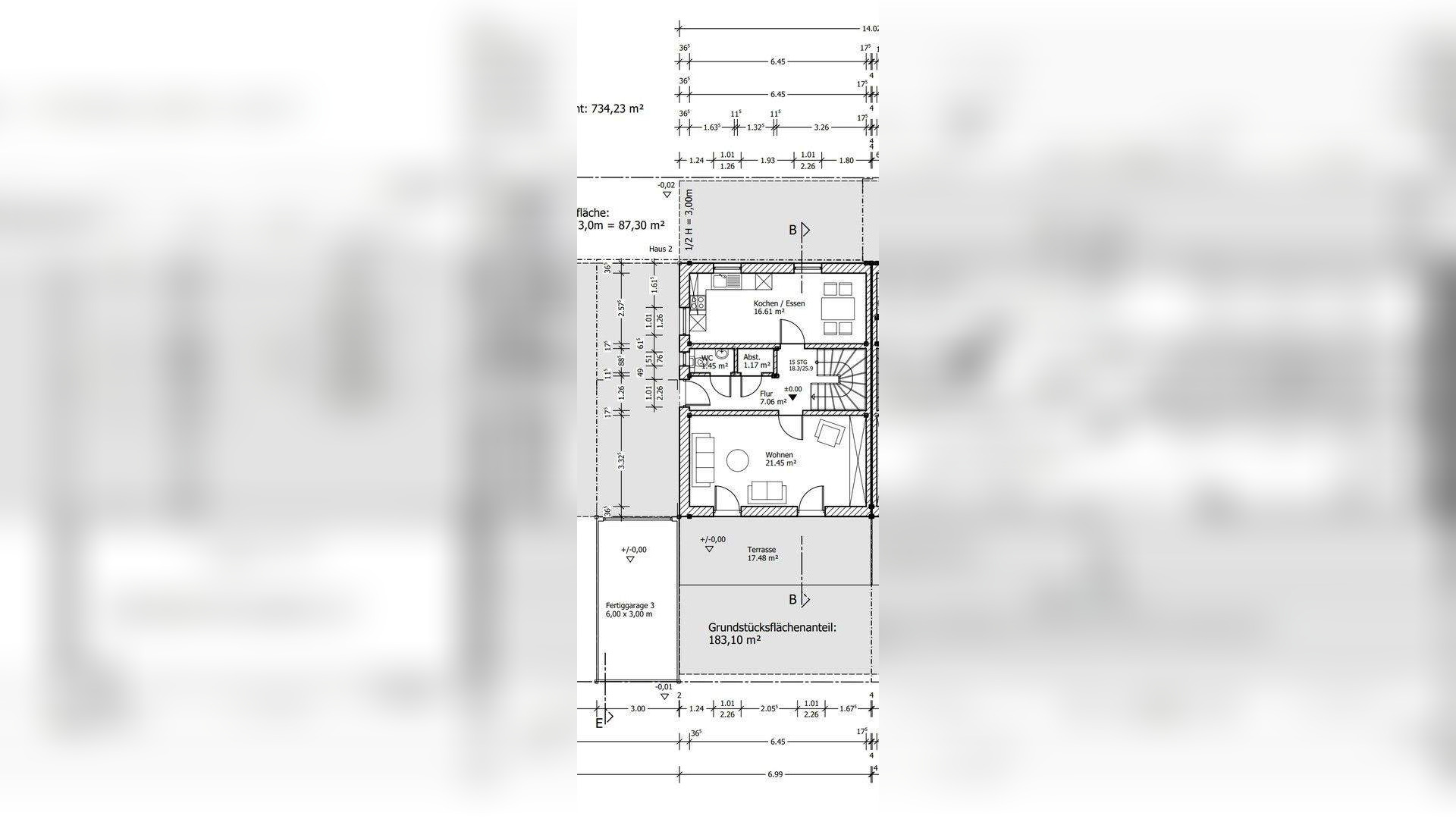
Objektdaten
Objektbeschreibung
Ziegelmassivbau nach KFW 55 Standard, ausgebauter Hobbyraum in Wohnraumhöhe im Keller, Massiv Holztreppe, 3-Scheiben Fenster mit Rollo, Das Dachgeschoss ist ausgebaut (Studio RaumÄhnliche Angebote
So funktioniert es
- Alle neuen Anzeigen matchen wir kostenlos mit Deinen Suchparametern.
- Passende Angebote senden wir Dir in einer E-Mail pro Tag.
- Du kannst auch verschiedene Suchen anlegen und Dich jederzeit abmelden. Mehr dazu



