Objektdaten
Objektbeschreibung
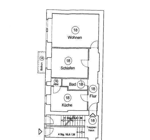
Diese charmante 2-Zimmer-Wohnung mit einer Wohnfläche von ca. 50,74 m² befindet sich im 1. Obergeschoss eines klassischen Berliner Altbaus und bietet eine hervorragende Grundlage für individuelle Gestaltungsideen.Die Einheit steht aktuell leer und wurde bereits vollständig geräumt sowie gezielt auf eine Sanierung vorbereitet. Dadurch können notwendige Renovierungsmaßnahmen unmittelbar und ohne umfangreichen Rückbauaufwand begonnen werden - ein klarer Vorteil für eine effiziente Umsetzung.Der derzeit stark renovierungsbedürftige Zustand eröffnet dabei ein hohes Maß an Gestaltungsfreiheit und die Möglichkeit, ein ganz persönliches Wohnkonzept zu verwirklichen.Ob zur Eigennutzung oder als Kapitalanlage: Diese Wohnung stellt eine attraktive Gelegenheit für Käufer dar, die Potenziale erkennen und durch eine durchdachte Modernisierung nachhaltig Mehrwert schaffen möchten.Ähnliche Angebote
So funktioniert es
- Alle neuen Anzeigen matchen wir kostenlos mit Deinen Suchparametern.
- Passende Angebote senden wir Dir in einer E-Mail pro Tag.
- Du kannst auch verschiedene Suchen anlegen und Dich jederzeit abmelden. Mehr dazu




