Objektdaten
Objektbeschreibung
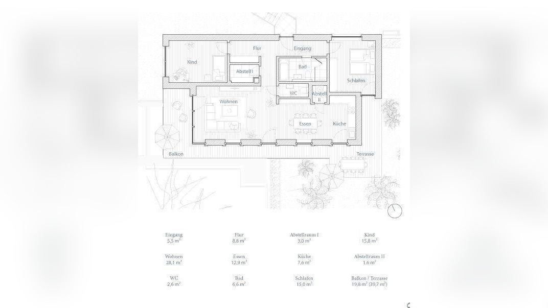
In dem historischen Saal des bekannten Lahmann-Sanatoriums am Weißen Hirsch sind 14 beeindruckende und individuelle Wohneinheiten mit folgender exklusiver Ausstattung entstanden:* frei stehendes Einfamilienhaus mit offenem und modernen Grundriss* große Fensterflächen* Sichtbetondecke* exklusiver Kamin* Eichenparkett* großer Terrasse und eigenem Garten* Balkon* Fußbodenheizung* modern und hell gefliestes Bad mit ebenerdige Dusche und Badewanne* Gäste-WC* Abstellraum* dreifach verglaste Fenster* Lüftungs- und Wärmerückgewinnungsanlage* Gegensprechanlage mit Video* Fern-/Kraft-Wärmekopplung* aufwendig bemalte und teilweise vergoldete Holzkassettendecken im gemeinschaftlichen Treppenhaus* Duplex-Tiefgaragenstellplätze ab 100 € je nach Größe möglich* Ladestation in der Tiefgarage am Stellplatz möglichDas Objekt unterliegt nicht den GEG-Anforderungen.Dieses und weitere Angebote finden Sie unter www.dresdden.deÄhnliche Angebote
So funktioniert es
- Alle neuen Anzeigen matchen wir kostenlos mit Deinen Suchparametern.
- Passende Angebote senden wir Dir in einer E-Mail pro Tag.
- Du kannst auch verschiedene Suchen anlegen und Dich jederzeit abmelden. Mehr dazu





