Kaufpreis 185.000 €
Zimmer 3
Größe 77 m²
13581 Berlin
Objektdaten
Veröffentlicht am: 21. März 2026
Energieausweis: Liegt bei der Besichtigung vor
Danke! Bitte bestätige Deine E-Mail-Adresse – wir haben Dir soeben eine Mail geschickt.
Es gab ein Problem beim Absenden. Bitte versuche es erneut.
Bitte bestätige Deine E-Mail-Adresse, um Updates zu erhalten.
Objektbeschreibung
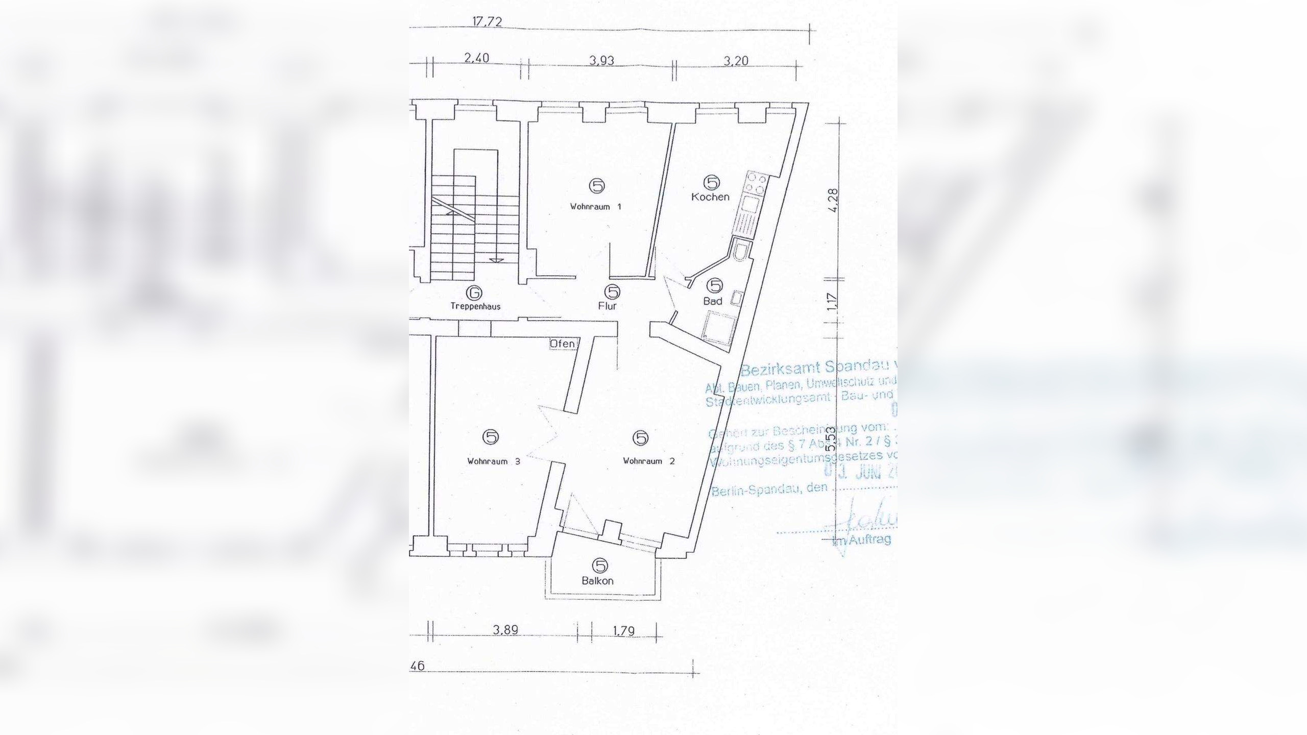
Die hier angebotene Eigentumswohnung befindet sich im ersten Obergeschoss eines klassischen Berliner Mehrfamilienhauses, dessen Baujahr auf etwa 1905 datiert und das Teil einer gewachsenen Altbaustruktur in der Krowelstraße ist. Das Gebäude umfasst mehrere Wohneinheiten und vermittelt bereits beim Betreten des Hauses den typischen Charakter historischer Berliner Wohnhäuser Treppenhaus und solider Bauweise.Die Wohnung verfügt über eine Wohnfläche von rund 77 m² und ist in drei Zimmer, eine separate Küche, ein Badezimmer sowie einen Flur gegliedert. Der Grundriss erlaubt eine klare und praktische Nutzung der Räume, sodass sowohl Wohn- als auch Schlaf- und Arbeitsbereiche komfortabel eingerichtet werden können. Ein Balkon ergänzt das Raumangebot und schafft einen zusätzlichen Rückzugsort im Freien.Die Einheit ist seit Mai 2017 zuverlässig vermietet und generiert aktuell eine monatliche Nettokaltmiete von 493,06 €, Betriebskosten VZ 124,48 €Gesamtkosten VZ 617,54 €Gesamtmiete. was sie insbesondere für Kapitalanleger interessant macht, die eine bereits etablierte Vermietung übernehmen möchten.Das Gebäude wird über eine Gasversorgung betrieben, während die Wohnung über eine Etagenheizung verfügt. Die Eigentümergemeinschaft verfügt über eine Instandhaltungsrücklage, die zum 31.12.2024 für diese Einheit anteilig rund 5.464,05 € beträgt.
So funktioniert es
- Alle neuen Anzeigen matchen wir kostenlos mit Deinen Suchparametern.
- Passende Angebote senden wir Dir in einer E-Mail pro Tag.
- Du kannst auch verschiedene Suchen anlegen und Dich jederzeit abmelden. Mehr dazu
Wir haben soeben eine E-Mail mit Deinem Suchauftrag an Dich geschickt. – Klicke in dieser Mail auf den Bestätigungslink und schon geht's los. Prüfe ggf. auch Deinen Spamordner.
Es gab ein Problem beim Absenden Deiner E-Mail-Adresse. Bitte versuche es erneut.
WARNUNG: Bitte bestätige Deine E-Mail-Adresse, um regelmäßige Updates zu erhalten.