Kaufpreis 79.000 €
Zimmer 6
Größe 134 m²
54441 Kastel-Staadt
Objektdaten
Veröffentlicht am: 22. März 2026
Baujahr: 1995
Energieausweis: Liegt bei der Besichtigung vor
Danke! Bitte bestätige Deine E-Mail-Adresse – wir haben Dir soeben eine Mail geschickt.
Es gab ein Problem beim Absenden. Bitte versuche es erneut.
Bitte bestätige Deine E-Mail-Adresse, um Updates zu erhalten.
Objektbeschreibung
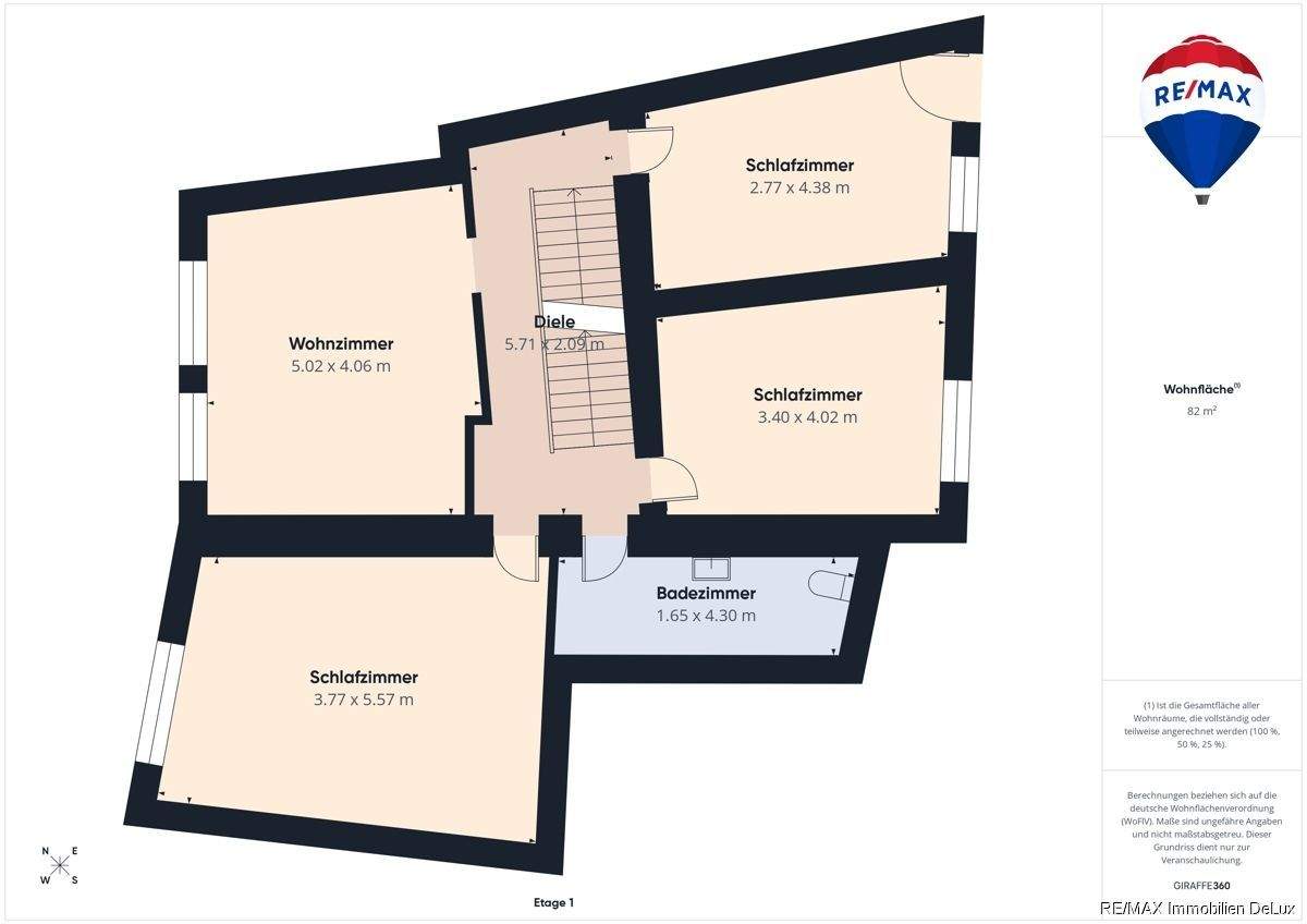
Dieses Einfamilienhaus bietet eine funktionale Raumaufteilungsowie eine solide Grundlage für verschiedene Nutzungsmöglichkeiten. Mit einer Wohnfläche von ca. 134 m², einer zusätzlichen Nutzfläche von ca. 143 m² sowie einem Grundstück von etwa 531 m² eignet sich die Immobilie insbesondere für Familien oder Paare, die ein Haus mit viel Platz und Gestaltungsmöglichkeiten suchen.Erdgeschoss:Beim Betreten des Hauses gelangen Sie in den Eingangsbereich mit gemauerten Rundbogen. Von hier aus führt der Flur in die weiteren Räume des Erdgeschosses sowie zur Treppe in die oberen Etagen.Im Erdgeschoss befinden sich das Wohnzimmer, die Küche sowie das Esszimmer. Das Wohnzimmer verfügt über große Fensterflächen, die für Tageslicht sorgen. Die Küche ist funktional geschnitten und bietet Platz für die alltäglichen Abläufe im Haushalt. Angrenzend befindet sich das Esszimmer, das ausreichend Platz für einen Esstisch bietet.Zusätzlich stehen im Erdgeschoss mehrere Nutzräume zur Verfügung. Dazu gehören die Garage, ein Heizungsraum sowie der Öltanklager. Diese Räume sind auch über die Küche erreichbar und können beispielsweise als Lagerfläche, Hauswirtschaftsraum, Hobbyraum oder Werkstatt genutzt werden.Obergeschoss: Über die Treppe gelangen Sie in das Obergeschoss des Hauses. Hier befinden sich 4 Zimmer, die flexibel als Schlaf-, Kinder-, Wohn- oder Arbeitszimmer genutzt werden können. Auch auf dieser Etage ist ein Kamin vorhanden. Die Räume verfügen über Fenster und werden mit Tageslicht versorgt.Dachgeschoss:Im Dachgeschoss stehen zusätzliche Nutzflächen zur Verfügung. Diese Bereiche können je nach Bedarf genutzt werden und bieten weiteres Ausbau- oder Stauraumpotential.360 Grad Besichtigung unter:https://tour.giraffe360.com/0cc518e7231146a0ac7e8f3a92c3ff1b
So funktioniert es
- Alle neuen Anzeigen matchen wir kostenlos mit Deinen Suchparametern.
- Passende Angebote senden wir Dir in einer E-Mail pro Tag.
- Du kannst auch verschiedene Suchen anlegen und Dich jederzeit abmelden. Mehr dazu
Wir haben soeben eine E-Mail mit Deinem Suchauftrag an Dich geschickt. – Klicke in dieser Mail auf den Bestätigungslink und schon geht's los. Prüfe ggf. auch Deinen Spamordner.
Es gab ein Problem beim Absenden Deiner E-Mail-Adresse. Bitte versuche es erneut.
WARNUNG: Bitte bestätige Deine E-Mail-Adresse, um regelmäßige Updates zu erhalten.