Kaufpreis 620.800 €
39261 Zerbst/Anhalt
Objektdaten
Veröffentlicht am: 22. März 2026
Danke! Bitte bestätige Deine E-Mail-Adresse – wir haben Dir soeben eine Mail geschickt.
Es gab ein Problem beim Absenden. Bitte versuche es erneut.
Bitte bestätige Deine E-Mail-Adresse, um Updates zu erhalten.
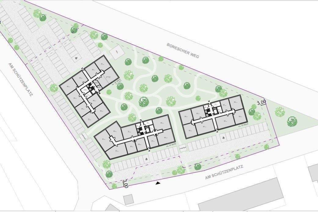
Objektbeschreibung
Abrissgrundstück zu verkaufen!KONZEPTIONIERUNG:Die Entwicklung der älteren Bevölkerung gewinnt immer mehr an Bedeutung und ist derzeit ein wichtiges Thema in Deutschland. Aufgrund des demografischen Wandels nimmt die Anzahl der höheren Altersgruppe in der Bevölkerung stetig zu. Dies stellt die Gesellschaft vor Herausforderungen, insbesondere im Bereich der Pflege und Betreuung. Es wird immer wichtiger, angemessene Unterstützung und barrierefreien Wohnraum für ältere Menschen zu schaffen. So auch in der fünftgrößten Gemeinde Deutschlands Zerbst im Bundesland Sachsen Anhalt. Da die Stadt Zerbst bereits mit Pflegeplätzen in Form von Alten- & Pflegeheimen, Seniorenzentren mit vollstationären sowie Kurzzeitpflegeplätzen und weiteren Senioreneinrichtungen ausgestattet ist, wurde hier das Konzept des betreuten Wohnens gewählt. In Anbetracht dessen wurden auf dem gewählten Grundstück insgesamt drei Wohnhäuser mit 35 - 75 m² großen Wohnungen geplant, um der genannten Problematik entgegenzuwirken und eine altersgerechte, sowie barrierefreie Lösung zu ermöglichen. Das Grundstück befindet sich in fußläufiger Nähe zur Innenstadt sowie zum Schützenplatzgelände der Stadt. Medizinische und ärztliche Versorgungen sind in unmittelbarer Nähe zu erreichen. Des Weiteren befinden sich angrenzend ein Museum wie auch ein Friedhof auf parkähnlichen Areal. Die Kubatur der Wohnhäuser sind angelehnt an die 4 km lange historische Stadtmauer, die die Stadt mit ihren Toren und Türmen prägt und umschließt. Hier soll vor allem die Ruhestörung zur verkehrsstarken Hauptstraße - Alter Teich -, dem Schützenplatz und des Kegelvereins entgegengewirkt werden. Sodass der Schall durch die Abkantung weniger in den grünen Hinterhof gelangt und die Gebäude sich durch eine gewählte Abtreppung der Kubatur zur Grünfläche hin öffnet. Die gemeinschaftliche Grünfläche ermöglicht den Bewohnern im Außenbereich zu verweilen und die Natur in Verbindung mit dem parkähnlichem Friedhof zu genießen. Eine weitere optionale Gemeinschaftsfläche befindet sich in Haus I, die ebenfalls eine Verbindung zur grünen Außenfläche schafft. Darüber hinaus befinden sich in den jeweils 2,5 vollgeschossigen Wohngebäuden Single- und Doppelappartments in verschiedenen Größen je nach Lebensphase. Das Grundstück wird einerseits von - Am Schützenplatz -, erschlossen sowie vom - Bonescher Weg -, sodass in jedem Falle ein kurzer Weg zu den jeweiligen Eingängen besteht. Mit diesem Entwurf wird zum Einen die Lebensqualität der Senioren altersgerecht verbessert, die Selbstständigkeit unterstützt und zum Anderen gegen die Einsamkeit der Menschen hinsichtlich des Mehrgenerationenspielplatzes und der Gemeinschaftsflächen hausintern vorgegangen.ANKERMIETER GESUCHT!! - INVESTOR und BAUHERR STEHT BEREIT -Das Abrissgrundstück kann auch einzeln zum oben genannten Preis verkauft werden
So funktioniert es
- Alle neuen Anzeigen matchen wir kostenlos mit Deinen Suchparametern.
- Passende Angebote senden wir Dir in einer E-Mail pro Tag.
- Du kannst auch verschiedene Suchen anlegen und Dich jederzeit abmelden. Mehr dazu
Wir haben soeben eine E-Mail mit Deinem Suchauftrag an Dich geschickt. – Klicke in dieser Mail auf den Bestätigungslink und schon geht's los. Prüfe ggf. auch Deinen Spamordner.
Es gab ein Problem beim Absenden Deiner E-Mail-Adresse. Bitte versuche es erneut.
WARNUNG: Bitte bestätige Deine E-Mail-Adresse, um regelmäßige Updates zu erhalten.