Objektdaten
Objektbeschreibung
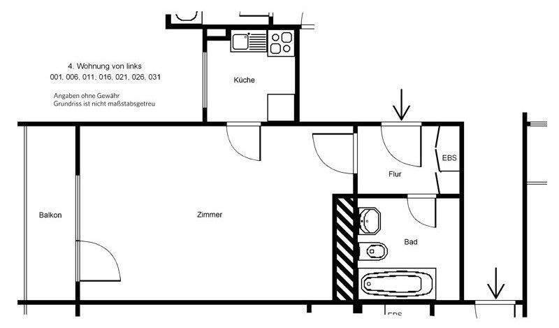
Diese stilvoll möblierte 1-Zimmer-Wohnung befindet sich im 4. Obergeschoss eines gepflegten Mehrfamilienhauses in der Birminghamstraße 91 in Frankfurt am Main. Auf ca. 37 m² Wohnfläche erwartet Sie ein durchdachtes Raumkonzept, das komfortables Wohnen auf kompaktem Raum ermöglicht.Der helle Wohn- und Schlafbereich ist bereits vollständig möbliert und bietet Ihnen einen direkten, unkomplizierten Einzug ohne zusätzlichen Aufwand. Die geschmackvolle Einrichtung schafft eine angenehme Wohnatmosphäre - ideal für alle, die eine sofort bezugsfertige Wohnung suchen.Ähnliche Angebote
So funktioniert es
- Alle neuen Anzeigen matchen wir kostenlos mit Deinen Suchparametern.
- Passende Angebote senden wir Dir in einer E-Mail pro Tag.
- Du kannst auch verschiedene Suchen anlegen und Dich jederzeit abmelden. Mehr dazu





