Kaufpreis 199.999 €
Zimmer 7
Größe 129 m²
79540 Lörrach
Objektdaten
Veröffentlicht am: 23. März 2026
Baujahr: 1929
Energieausweis: Liegt bei der Besichtigung vor
Danke! Bitte bestätige Deine E-Mail-Adresse – wir haben Dir soeben eine Mail geschickt.
Es gab ein Problem beim Absenden. Bitte versuche es erneut.
Bitte bestätige Deine E-Mail-Adresse, um Updates zu erhalten.
Objektbeschreibung
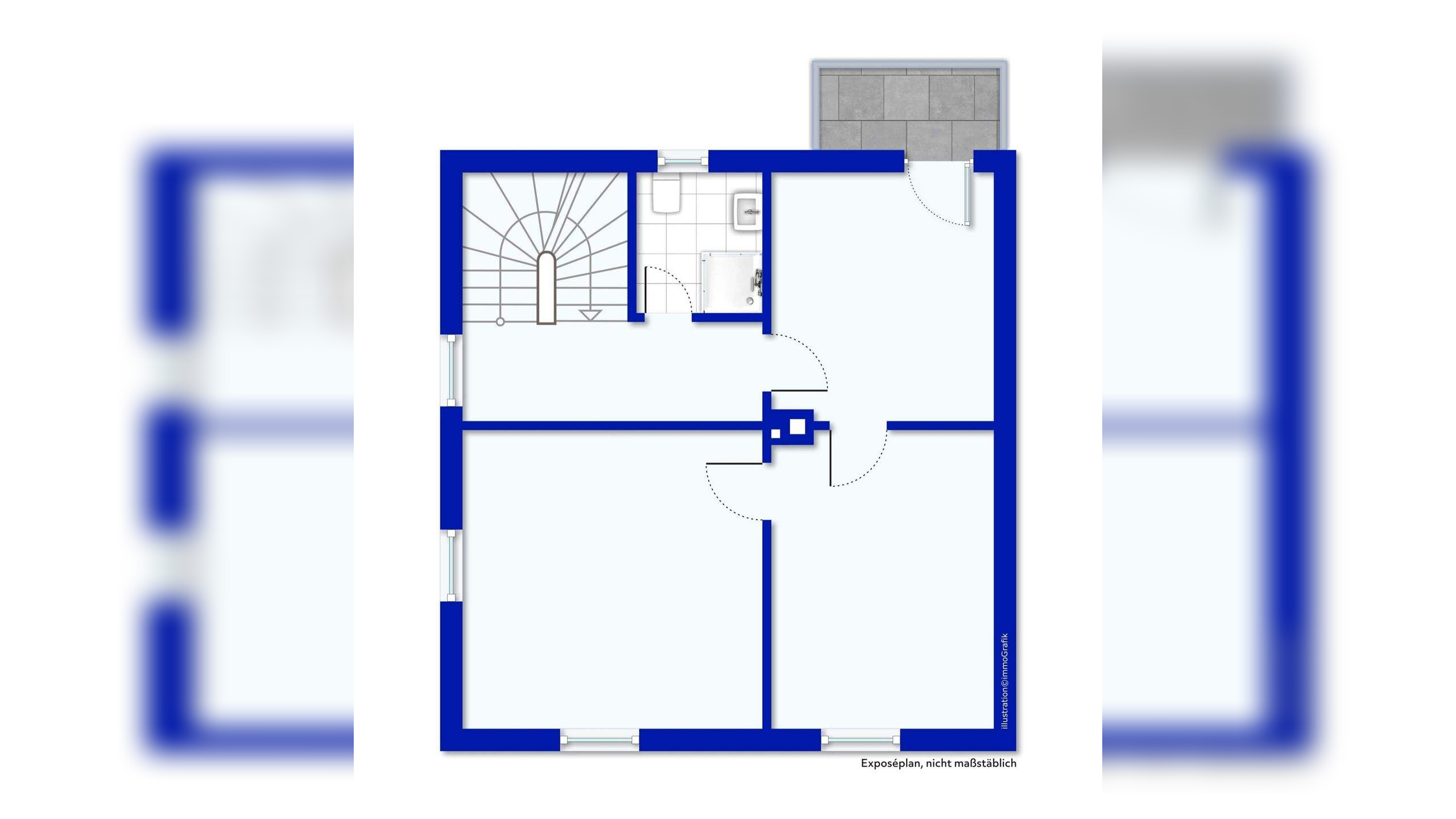
Dieses gepflegte Reihenendhaus aus dem Baujahr 1929 vereint den besonderen Charme eines klassischen Altbaus mit dem Potenzial für individuelle Gestaltungsmöglichkeiten. Die Immobilie befindet sich im attraktiven Stadtteil Lörrach-Stetten. Nutzen Sie die Chance sich ein Objekt in Top-Lage, mit Wohnrecht des Eigentümers, für die Zukunft zur sichern. Besonders hervorzuheben ist die durchdachte Investitionsstruktur dieser Immobilie. Bestandteil des Angebots ist ein im Grundbuch eingetragenes lebenslanges Wohnrecht zugunsten des aktuellen Eigentümers. Für Käufer eröffnet sich dadurch eine seltene Gelegenheit: Die Immobilie kann zu einem deutlich reduzierten Kaufpreis erworben werden, während der derzeitige Eigentümer das Haus weiterhin bewohnt und mit großer Sorgfalt nutzt. Gleichzeitig sichern Sie sich bereits heute eine Immobilie mit langfristigem Entwicklungspotenzial in einer etablierten Wohnlage. Nach Erlöschen des Wohnrechts steht das Haus vollständig zur freien Verfügung, sei es zur Eigennutzung, zur Vermietung oder als wertstabile Ergänzung eines Immobilienportfolios. Gerade in Zeiten steigender Immobiliennachfrage bietet diese Konstellation die attraktive Möglichkeit, frühzeitig Substanzwerte zu sichern.Die Wohnfläche der Immobilie erstreckt sich über drei Stockwerke. Das voll ausgebaute Dachgeschoss bietet zusätzlichen Wohnraum. im gemütlichen Erdgeschoss befindet sich die Küche mit direkt angeschlossenem Esszimmer, für bessere energetische Aufstellung des Hauses wurden im Erdgeschoss bereits dreifach verglaste Fenster verbaut. Durch eine kleine Veranda gelangen Sie aus der Küche direkt auf die überdachte, gemütliche Terrasse im Hinterhof. Ein praktisches Gäste-WC und das gemütliche Wohnzimmer runden das Raumangebot im Erdgeschoss ab. Im ersten Obergeschoss befindet sich ein nützlicher Wasch-und Bügelraum sowie das große Schlafzimmer mit angeschlossener Ankleide. Ein Highlight des ersten Obergeschoss ist das Tageslichtbad sowie der gemütliche Balkon. Im Ausgebauten Dachgeschoss liegt ein weiteres Tageslichtbadezimmer sowie zwei weitere große Zimmer zur freien Entfaltung. Für weiteren Stauraum sorgt eine kleine Abstellkammer im Dachgeschoss.
So funktioniert es
- Alle neuen Anzeigen matchen wir kostenlos mit Deinen Suchparametern.
- Passende Angebote senden wir Dir in einer E-Mail pro Tag.
- Du kannst auch verschiedene Suchen anlegen und Dich jederzeit abmelden. Mehr dazu
Wir haben soeben eine E-Mail mit Deinem Suchauftrag an Dich geschickt. – Klicke in dieser Mail auf den Bestätigungslink und schon geht's los. Prüfe ggf. auch Deinen Spamordner.
Es gab ein Problem beim Absenden Deiner E-Mail-Adresse. Bitte versuche es erneut.
WARNUNG: Bitte bestätige Deine E-Mail-Adresse, um regelmäßige Updates zu erhalten.