Objektdaten
Objektbeschreibung
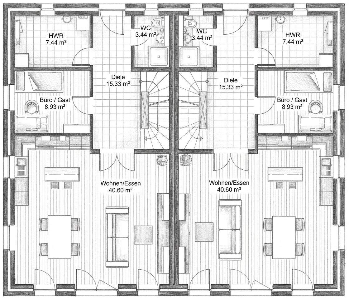
Modernes Bauprojekt für zwei Doppelhaushälften als Hamburger Stadtvilla. Gebaut wird im KfW40-Standard mit ca. 147 qm Wohnfläche. Dieses Angebot bezieht sich auf die im Lageplan mit "TF1" gekennzeichnete Teilfläche.Ausstattung und Technik werden auch gerne anhand Ihrer Vorstellungen und Vorgaben geplant.Im Rahmen der Planung können ebenfalls Ihre individuellen Grundrisswünsche berücksichtigt werden. Wir beraten Sie dazu gerne im persönlichen Gespräch.Ausstattungsmerkmale des Bauprojekts:KfW40-EE Standard für energieeffizientes und nachhaltiges WohnenFußbodenheizung im Erd- und DachgeschossVollklinkerfassade für ein zeitloses und hochwertiges ErscheinungsbildMassive Innenwände im Erd- und Dachgeschoss für ein angenehmes RaumklimaIndividuelle Grundrissplanung nach Ihren WünschenVielfältige Sonderausstattungen auf Anfrage möglichBei Interesse setzen Sie sich gern mit uns in Verbindung, um die ggf. noch offenen Fragen klären zu können.Ähnliche Angebote
So funktioniert es
- Alle neuen Anzeigen matchen wir kostenlos mit Deinen Suchparametern.
- Passende Angebote senden wir Dir in einer E-Mail pro Tag.
- Du kannst auch verschiedene Suchen anlegen und Dich jederzeit abmelden. Mehr dazu




