Objektdaten
Objektbeschreibung
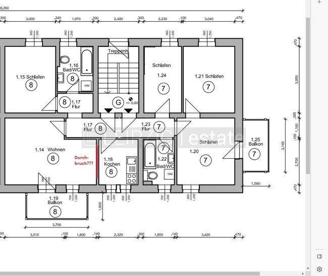
Hier können wir aus zwei 2 Raumwohnungen durch einen Durchbruch im Flur eine große 4 RWG (mit zwei Küchen) oder eine 5 RWG (Rückbau einer Küche) herrichten.Beide Wohnungen sind noch bewohnt. Die linke Wohnung ist möbliert. Renovierungszustand etc sind daher noch nicht bekannt - und Absprachefähig.Kurz: Bei Interesse einfach kurz eine Emailanfrage mit Rufnummer senden und wir stimmen uns direkt ab. Vielen Dank.Ähnliche Angebote
So funktioniert es
- Alle neuen Anzeigen matchen wir kostenlos mit Deinen Suchparametern.
- Passende Angebote senden wir Dir in einer E-Mail pro Tag.
- Du kannst auch verschiedene Suchen anlegen und Dich jederzeit abmelden. Mehr dazu




