Frisch kerngesanierte 2-Zimmer-Wohnung im Erdgeschoss eines EE70-Hauses. Mit geräumigen Räumen und moderner Einbauküche sowie einem großen Balkon zur Südseite. Direkt am Bahnhof gelegen in einer ruhigen, zentralen Lage mit nahe liegender Gastronomie und Natur.
Objektdaten
Objektbeschreibung
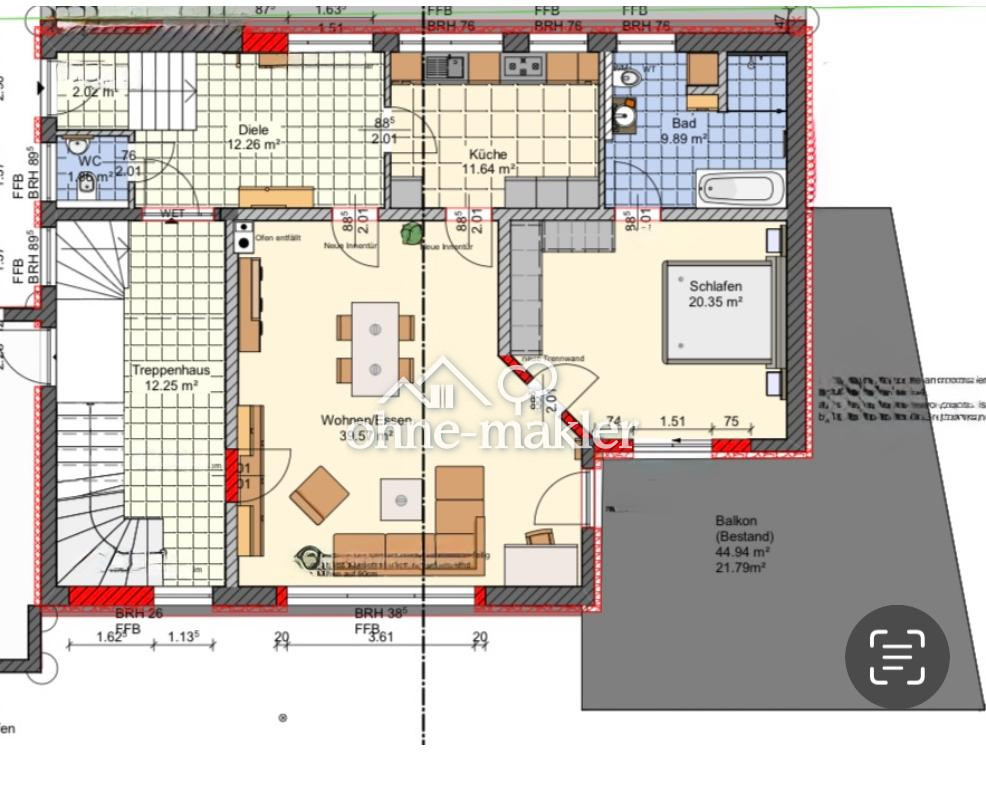
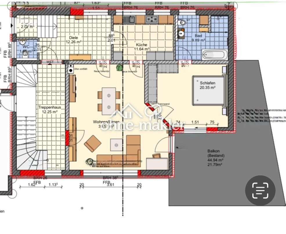
Diese frisch kernsanierte 2- Zimmer-Wohnung im Erdgeschoss(Hanglage zur Südseite) eines EE70 – Hauses (kernsaniert 2025, Baujahr 1975) bietet erstklassigen Wohnkomfort auf circa 119 m². Der sonnige, teilweise überdachte Balkon zur Südseite (ca. 45 m2, davon circa 22 m² anrechenbare Wohnfläche, über 2 Räume zugänglich) erweitert den Wohnraum ins Freie. Dieser ist zur Südseite in Hanglage. Die Räume sind sehr geräumig und durch große Fenster lichtdurchflutet. Die Wohnung ist ideal für Einzelpersonen oder Paare. Sie befindet sich in einem 3 Parteien Haus. Im Kellergeschoss Gewerbeeinheit / Praxis. Im Erdgeschoss und Obergeschoss befinden sich je eine Mietwohnung. Raumaufteilung: – 1 Schlafzimmer – 1 sehr großzügiger Wohnzimmer/Essbereich - 1 Küche mit Einbauküche – 1 En-suite-Bad (nur vom Schlafzimmer begehbar) mit ebenerdiger offener Dusche und Wanne ( neu renoviert ) - 1 Gäste-WC – großer Eingangsbereich mit separater Haustür (Stufen) - möglicher Eingang über Hinterhof oder durch vorhandene Garage über den Gemeinschaftsgang - ca. 29m2 große Garage mit elektrischem Tor sowie Vorrüstung für E-Ladestation - Hofeinfahrt vor Garage als weiterer Stellplatz Warmmiete inkl. Garage/ Einbauküche 1.590,00€ Objektzustand: Erstbezug nach Sanierung Balkon, Vollbad, Duschbad, Einbauküche, Gäste-WC, Fliesen Bemerkungen: – Fußbodenheizung über Wärmepumpe – 3-Fach verglaste Fenster – Elektrische Rollläden – Warmwasser über Durchlauferhitzer (Mieterstrom) – Schließanlage - Einbaustrahler in der gesamten Wohnung - hochwertiger Vinylboden, sowie im Bad hochwertige Keramikfliesen - weiße Innentüren - kontrollierte Be- und Entlüftung – eigene Garage direkt vor der Haustür 50 € pro Monat (mit Vorrüstung für E-Ladestation) - Einbauküche inkl.aller Geräte (ohne Kühlschrank) 50,00€ mtl.Lagebeschreibung
Zentral in der Bahnhofstraße gelegen – nur circa 2 Minuten zu Fuß vom Bahnhof entfernt. Einkaufsmöglichkeiten, Gastronomie und Natur (Rezat) befinden sich in unmittelbarer Nähe. Ruhige Lage, trotz Bahnhofsnähe- ideal für Ruhesuchende und Paare.
Infrastruktur (im Umkreis von 5 km):
Apotheke, Lebensmittel-Discount, Allgemeinmediziner, Kindergarten, Grundschule, Hauptschule, Gymnasium, Gesamtschule, Öffentliche Verkehrsmittel
So funktioniert es
- Alle neuen Anzeigen matchen wir kostenlos mit Deinen Suchparametern.
- Passende Angebote senden wir Dir in einer E-Mail pro Tag.
- Du kannst auch verschiedene Suchen anlegen und Dich jederzeit abmelden. Mehr dazu





