Objektdaten
Objektbeschreibung
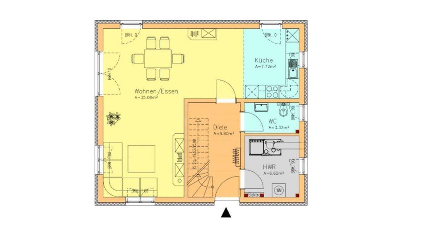
Individuell geplant und als Raumwunder einfach nur schön großzügig für Sie!Hier verbindet sich mediterranes Flair mit städtischem Komfort. Durch die zeitlose Architektur und reichlich Platz in zwei Vollgeschossen ist die Stadtvilla im wahrsten Sinne des Wortes ein "moderner Klassiker". Bodentiefe Fensterelemente vermitteln Großzügigkeit und garantieren lichtdurchflutete Räume.Das Angebot beinhaltet:- Grundstückspreis- Erdarbeiten- schlüsselfertige Ausführung (ohne Maler- und Bodenbelagsarbeiten) mit individueller Planung - KfW 40-Standard inkl. Wärmepumpe mit zentraler Lüftungsanlage mit WärmerückgewinnungSo funktioniert es
- Alle neuen Anzeigen matchen wir kostenlos mit Deinen Suchparametern.
- Passende Angebote senden wir Dir in einer E-Mail pro Tag.
- Du kannst auch verschiedene Suchen anlegen und Dich jederzeit abmelden. Mehr dazu




