Kaufpreis 469.000 €
87463 Dietmannsried
Objektdaten
Veröffentlicht am: 25. März 2026
Danke! Bitte bestätige Deine E-Mail-Adresse – wir haben Dir soeben eine Mail geschickt.
Es gab ein Problem beim Absenden. Bitte versuche es erneut.
Bitte bestätige Deine E-Mail-Adresse, um Updates zu erhalten.
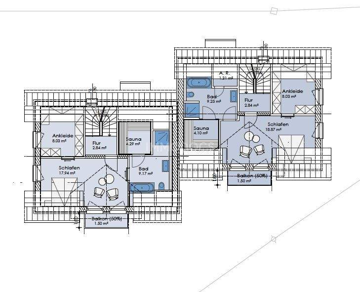
Objektbeschreibung
Einmalige Möglichkeit! In gemütlicher Lage Dietmannsrieds kann dieses beplante Grundstück zum Bau eines Doppelhauses, also zwei Hälften und bis zu 6 Garagenstellplätzen erworben werden. Die derzeitige Planung sieht ein Doppelhaus vor, dass sich nach Westen bzw. Süden ausrichtet und je nach Hälfte ca. 174,40 bzw. ca. 181,40 Quadratmeter Wohnfläche bietet. Die Grundrissplanung ist äußerst bedacht und effizient gestaltet. Neben offenen Wohn- und Essräumen bietet die Planung Platz für 4 Schlafzimmer und einem exklusiven Masterbad und weiteren Gimmicks wie einer Sauna. Hierbei ist das reine Grundstück nebst Planung angeboten, auf die derzeit noch eingewirkt werden kann. Das Grundstück ist demnach kurzfristig bebaubar, wodurch sich der Traum nach Eigentum und eigener Bauleistung erfüllen kann. Die Grundstücke können bei Bedarf auch geteilt werden, im ersten Zuge möchten wir aber die Möglichkeit für den Erwerber bieten, das Grundstück und die Bebauung ganzheitlich selbst zu koordinieren.
So funktioniert es
- Alle neuen Anzeigen matchen wir kostenlos mit Deinen Suchparametern.
- Passende Angebote senden wir Dir in einer E-Mail pro Tag.
- Du kannst auch verschiedene Suchen anlegen und Dich jederzeit abmelden. Mehr dazu
Wir haben soeben eine E-Mail mit Deinem Suchauftrag an Dich geschickt. – Klicke in dieser Mail auf den Bestätigungslink und schon geht's los. Prüfe ggf. auch Deinen Spamordner.
Es gab ein Problem beim Absenden Deiner E-Mail-Adresse. Bitte versuche es erneut.
WARNUNG: Bitte bestätige Deine E-Mail-Adresse, um regelmäßige Updates zu erhalten.