Kaufpreis 705.065 €
Zimmer 5
Größe 149 m²
16356 Ahrensfelde
Objektdaten
Veröffentlicht am: 25. März 2026
Energieausweis: Liegt bei der Besichtigung vor
Danke! Bitte bestätige Deine E-Mail-Adresse – wir haben Dir soeben eine Mail geschickt.
Es gab ein Problem beim Absenden. Bitte versuche es erneut.
Bitte bestätige Deine E-Mail-Adresse, um Updates zu erhalten.
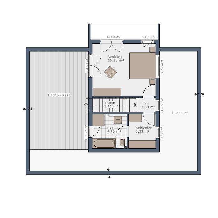
Objektbeschreibung
Herzlich willkommen in Ihrem neuen Zuhause, das speziell für Familien und herzliche Menschen gestaltet wurde! Dieses großzügige Haus bietet nicht nur ausreichend Platz für Ihre Lieben, sondern auch eine warme und einladende Atmosphäre.Im Erdgeschoss erwartet Sie ein geräumiges Wohnzimmer mit großen Fenstern, die viel Tageslicht hereinlassen. Die offene Küche bildet das Herz des Hauses und ist ideal für das gesellige Beisammensein. Das Esszimmer bietet Platz für gemeinsame Mahlzeiten und Feierlichkeiten.Im Obergeschoss finden Sie die Schlafzimmer, darunter ein Hauptschlafzimmer mit eigenem Bad und begehbarem Kleiderschrank, sowie weitere Zimmer für Kinder oder Gäste. Der Garten ist ein Paradies für Aktivitäten im Freien.Wenn Sie auf der Suche nach einem Zuhause sind, das mehr als nur vier Wände bietet - ein echtes Familienheim in einer herzlichen Nachbarschaft - könnte dieses Ihr perfektes Eigenheim sein. Kontaktieren Sie uns noch heute, um eine Besichtigung zu vereinbaren!
So funktioniert es
- Alle neuen Anzeigen matchen wir kostenlos mit Deinen Suchparametern.
- Passende Angebote senden wir Dir in einer E-Mail pro Tag.
- Du kannst auch verschiedene Suchen anlegen und Dich jederzeit abmelden. Mehr dazu
Wir haben soeben eine E-Mail mit Deinem Suchauftrag an Dich geschickt. – Klicke in dieser Mail auf den Bestätigungslink und schon geht's los. Prüfe ggf. auch Deinen Spamordner.
Es gab ein Problem beim Absenden Deiner E-Mail-Adresse. Bitte versuche es erneut.
WARNUNG: Bitte bestätige Deine E-Mail-Adresse, um regelmäßige Updates zu erhalten.