Kaufpreis 675.000 €
83104 Tuntenhausen
Objektdaten
Veröffentlicht am: 25. März 2026
Danke! Bitte bestätige Deine E-Mail-Adresse – wir haben Dir soeben eine Mail geschickt.
Es gab ein Problem beim Absenden. Bitte versuche es erneut.
Bitte bestätige Deine E-Mail-Adresse, um Updates zu erhalten.
Objektbeschreibung
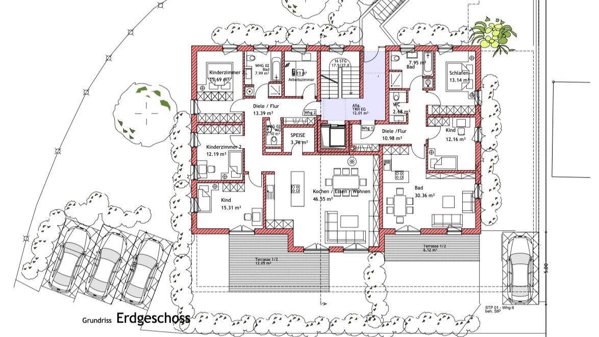
Zum Verkauf steht ein attraktives Baugrundstück in gewachsener Wohnlage von Dettendorf, Gemeinde Tuntenhausen. Für das Grundstück liegt eine gültige Baugenehmigung vor, die eine Bebauung gemäß den genehmigten Plänen für den Neubau eines modernen Mehrfamilienhauses mit 6 hochwertigen Wohneinheiten und Tiefgarage ermöglicht.Die Grundstücksform und Größe bieten optimale Voraussetzungen für eine zeitgemäße Bebauung - eine ideale Gelegenheit für Investoren, Bauträger oder private Bauherren, die ein wertbeständiges Projekt in einer der begehrten Regionen Oberbayerns realisieren möchten.Die bestehende Baugenehmigung schafft Planungssicherheit und verkürzt den Entwicklungsprozess erheblich.Eckdaten (Quelle: genehmigte Bauakte)Grundstücksfläche: ca. 1.009 m² Lage: Am Forsthaus 1, 83104 DettendorfFlurnummer: 637/2Bebauung nach §34 BauGBWohnfläche Mehrfamilienhaus nach WoFlV: 603,62 m²Nutzfläche Gesamt: 70,95 m²Nutzfläche Tiefgarage: 231,85 m²Grundfläche EG Mehrfamilienhaus nach BauNVO: 268,33. m² (GRZ = 0,27) Geschossfläche Mehrfamilienhaus nach BauNVO: 536,66 m² (GFZ = 0,53)Stellplätze: 13, davon 4 Aussenstellplätze und 9 Tiefgaragenstellplätze
So funktioniert es
- Alle neuen Anzeigen matchen wir kostenlos mit Deinen Suchparametern.
- Passende Angebote senden wir Dir in einer E-Mail pro Tag.
- Du kannst auch verschiedene Suchen anlegen und Dich jederzeit abmelden. Mehr dazu
Wir haben soeben eine E-Mail mit Deinem Suchauftrag an Dich geschickt. – Klicke in dieser Mail auf den Bestätigungslink und schon geht's los. Prüfe ggf. auch Deinen Spamordner.
Es gab ein Problem beim Absenden Deiner E-Mail-Adresse. Bitte versuche es erneut.
WARNUNG: Bitte bestätige Deine E-Mail-Adresse, um regelmäßige Updates zu erhalten.