Objektdaten
Objektbeschreibung
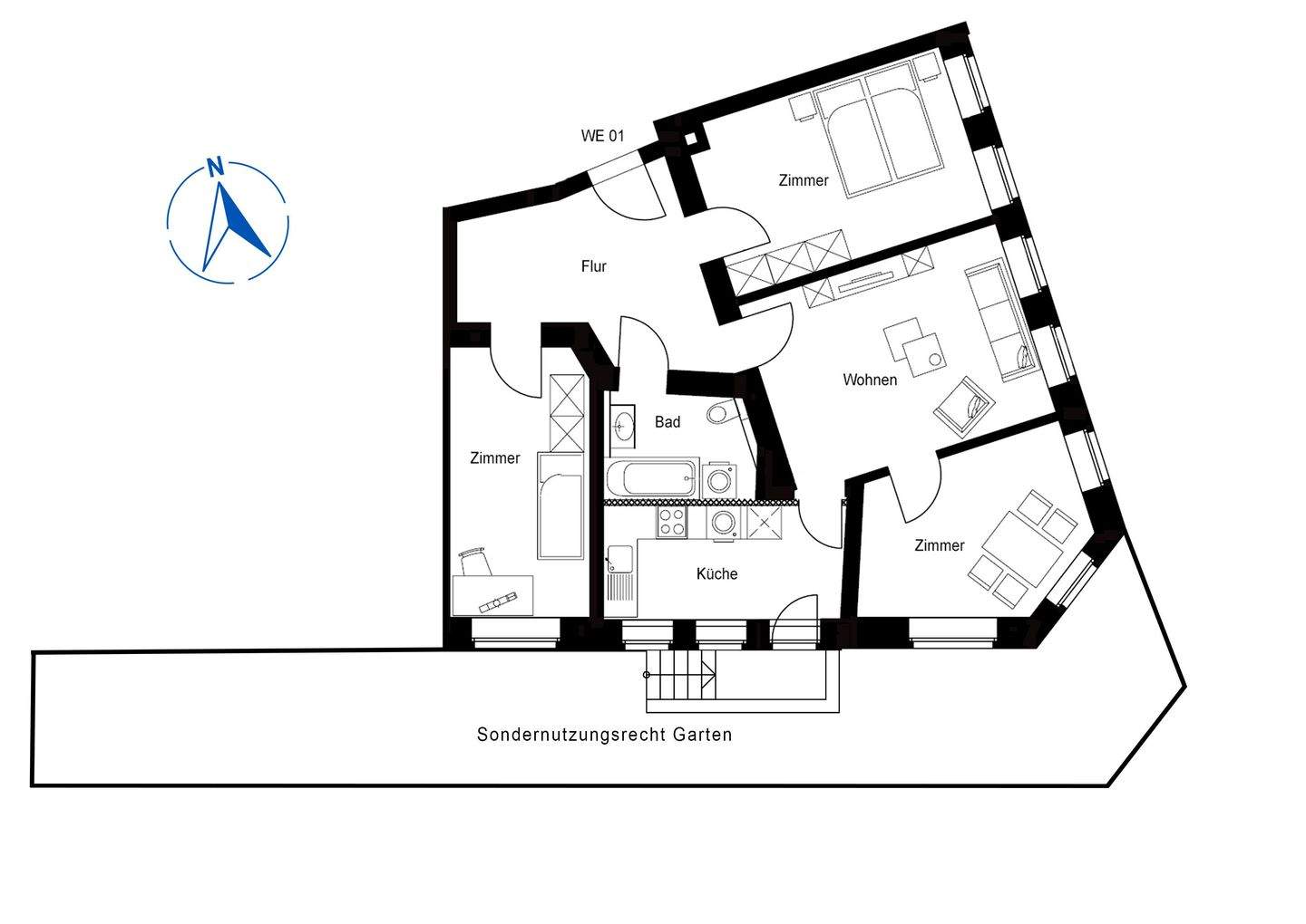
Die vielseitige 4-Raum-Wohnung befindet sich im Erdgeschoss eines liebevoll sanierten Mehrfamilienhauses und vereint durchdachte Grundrissgestaltung mit komfortablem Wohnambiente. Auf ca.?80?m² bietet sie ausreichend Platz für unterschiedlichste Wohnbedürfnisse.Über den einladenden Flur erreicht man alle Räume der Wohnung. Highlight ist das großzügig geschnittene Wohnzimmer mit großen Fenstern, welche viel Licht und eine angenehme Atmosphäre schaffen. Drei weitere, gut geschnittene, Zimmer sind individuell als Schlafzimmer, Arbeits- oder Kinderzimmer nutzbar. Das Badezimmer überzeugt durch ein modernes Fliesendesign und ist mit einer Wanne und einem Waschmaschinenanschluss ausgestattet. Die separate Küche ist funktional geschnitten und bietet einen direkten Zugang zum Gartenanteil mit Sondernutzungsrecht - ein absolutes Highlight für entspannte Stunden im Grünen direkt vor der Tür! In den Wohnräumen befindet sich hochwertiger Laminatboden. Die integrierte Fußbodenheizung sorgt für ein angenehmes Raumklima und erhöht den Komfort zusätzlich. Zur Wohnung gehört zudem ein eigenes Kellerabteil mit genügend Stauraum für persönliche Gegenstände.Die Einheit ist seit 2022 vermietet. Aktuell werden jährliche Mieteinnahmen in Höhe von 7.440,-€ erzielt. Dies entspricht einer Brutto-Soll-Rendite von 3,46% p.a.!Im Objekt stehen weitere Einheiten mit Wohnflächen zwischen ca.?60-97?m² zum Verkauf. Bei Interesse stellen wir Ihnen gern weiterführende Informationen zur Verfügung.Ähnliche Angebote
So funktioniert es
- Alle neuen Anzeigen matchen wir kostenlos mit Deinen Suchparametern.
- Passende Angebote senden wir Dir in einer E-Mail pro Tag.
- Du kannst auch verschiedene Suchen anlegen und Dich jederzeit abmelden. Mehr dazu




