Objektdaten
Objektbeschreibung
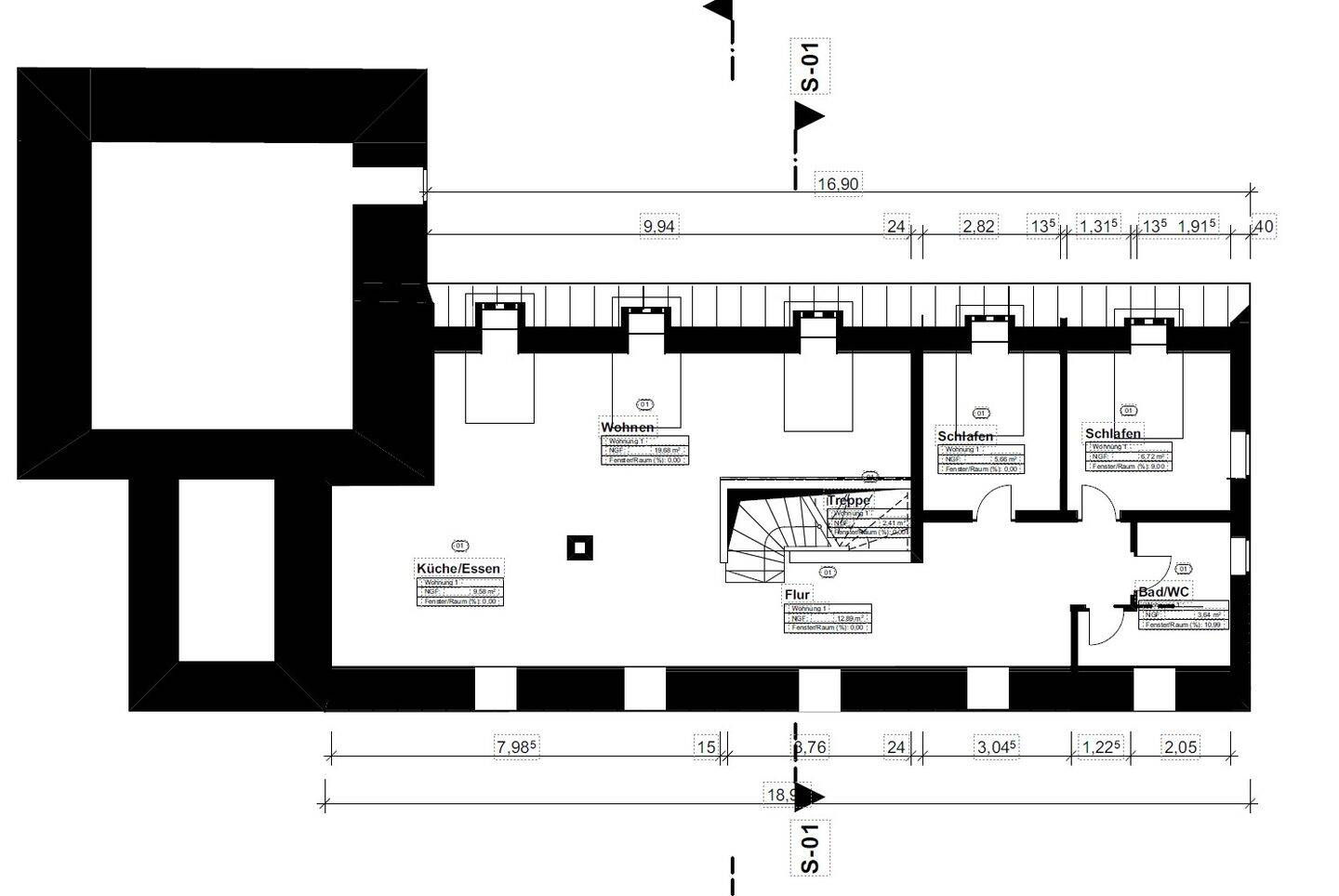
Sie mögen es extravagant? Wir auch!Unser Wohnungsangebot ist etwas ganz Besonderes: offene Raumgestaltung auf zwei Ebenen, zwei Bäder, davon ein Wellnessbad, ein Glasausschnitt im Boden der Galerie und eine großzügige Dachterrasse mit Blick Richtung Nürnberg!Empfangen Sie Ihre Gäste im "Erdgeschoss" Ihrer Wohnung und bleiben Sie im Obergeschoss völlig privat.Der Privatraum ist Ihnen zu großzügig? Kein Problem - auf Wunsch kann dieser in zwei oder sogar drei Räumen geteilt werden.Bitte beachten Sie, dass die Grafik des Wellnessbades der beispielhaften Darstellung dient und von der tatsächlichen Fertigstellung abweichen kann.Eine ruhige Seitenstraße, durchdachte Architektur und ein Neubaustandard von KfW 55 zeichnen den Standort und das Haus aus. Lassen Sie sich inspirieren und überzeugen Sie sich selbst.Alle Geschosse sind über einen Aufzug erreichbar. Zu jeder Wohnung gehört außerdem noch ein Kellerersatzraum.Die Highlights:- niedrige Energiekosten durch energieeffiziente Bauweise + Photovoltaik- 1 bis 2 Stellplätze pro Wohnung zusätzlich mietbar- Ausschließlich bodentiefe Fenster (außer Galeriegeschoss)- 1 Dachterrasse- Einbauküche kann gemietet oder gekauft werdenSo funktioniert es
- Alle neuen Anzeigen matchen wir kostenlos mit Deinen Suchparametern.
- Passende Angebote senden wir Dir in einer E-Mail pro Tag.
- Du kannst auch verschiedene Suchen anlegen und Dich jederzeit abmelden. Mehr dazu





