Kaufpreis 465.244 €
Zimmer 3
Größe 101 m²
66706 Perl
Objektdaten
Veröffentlicht am: 25. März 2026
Frei ab: 1. Juni 2027
Energieausweis: Liegt bei der Besichtigung vor
Danke! Bitte bestätige Deine E-Mail-Adresse – wir haben Dir soeben eine Mail geschickt.
Es gab ein Problem beim Absenden. Bitte versuche es erneut.
Bitte bestätige Deine E-Mail-Adresse, um Updates zu erhalten.
Objektbeschreibung
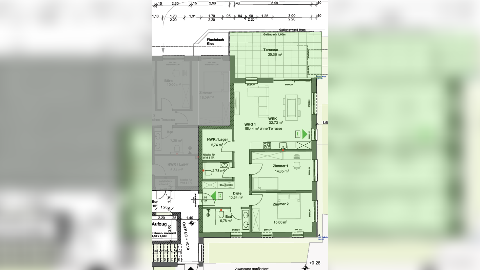
Wohnung 1 Erdgeschoss / Baubeginn Januar 2026
Die großzügig geschnittene 3-Zimmer-Wohnung überzeugt durch ihren hellen, offenen Grundriss und eine durchdachte, alltagstaugliche Raumaufteilung.
Ein einladender Eingangsbereich mit Platz für eine große Garderobe empfängt Sie stilvoll.
Praktisch: Der angrenzende Hauswirtschafts- und Abstellraum bietet zusätzlichen Stauraum und sorgt für Ordnung im Alltag.
Die Wohnung verfügt über drei vollwertige Zimmer, die vielfältige Nutzungsmöglichkeiten bieten, ob als Schlafzimmer, Kinderzimmer oder Arbeitsraum.
Das moderne Duschbad mit Fenster sorgt für angenehme Belüftung und natürliches Licht, während das separate Gäste-WC zusätzlichen Komfort bietet.
Der offene Wohn-, Ess- und Küchenbereich bildet das Herzstück der Wohnung und öffnet sich zur großen Terrasse mit 25,36 m² Fläche, ideal, um Sonne und Weitblick zu genießen oder gemütliche Stunden im Freien zu verbringen.
Ausstattung & Highlights:
Helle, lichtdurchflutete Räume
Großzügige Terrasse
Aufzug bis zur Wohnungsebene
Energetisch effiziente Bauweise
Hochwertige Ausstattung und modernes Design
Zusätzliche Kaufoptionen:
Garagenstellplatz: 25.000 €
Außenstellplatz: 10.000 €
Fordern Sie jetzt Ihr persönliches Exposé an.
So funktioniert es
- Alle neuen Anzeigen matchen wir kostenlos mit Deinen Suchparametern.
- Passende Angebote senden wir Dir in einer E-Mail pro Tag.
- Du kannst auch verschiedene Suchen anlegen und Dich jederzeit abmelden. Mehr dazu
Wir haben soeben eine E-Mail mit Deinem Suchauftrag an Dich geschickt. – Klicke in dieser Mail auf den Bestätigungslink und schon geht's los. Prüfe ggf. auch Deinen Spamordner.
Es gab ein Problem beim Absenden Deiner E-Mail-Adresse. Bitte versuche es erneut.
WARNUNG: Bitte bestätige Deine E-Mail-Adresse, um regelmäßige Updates zu erhalten.