Kaufpreis 389.400 €
Zimmer 4
Größe 149 m²
25348 Engelbrechtsche Wildnis
Objektdaten
Veröffentlicht am: 25. März 2026
Energieausweis: Liegt bei der Besichtigung vor
Danke! Bitte bestätige Deine E-Mail-Adresse – wir haben Dir soeben eine Mail geschickt.
Es gab ein Problem beim Absenden. Bitte versuche es erneut.
Bitte bestätige Deine E-Mail-Adresse, um Updates zu erhalten.
Objektbeschreibung
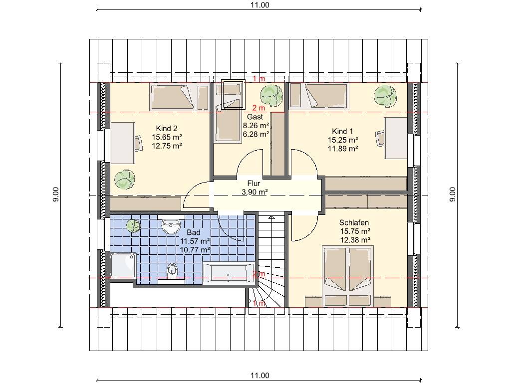
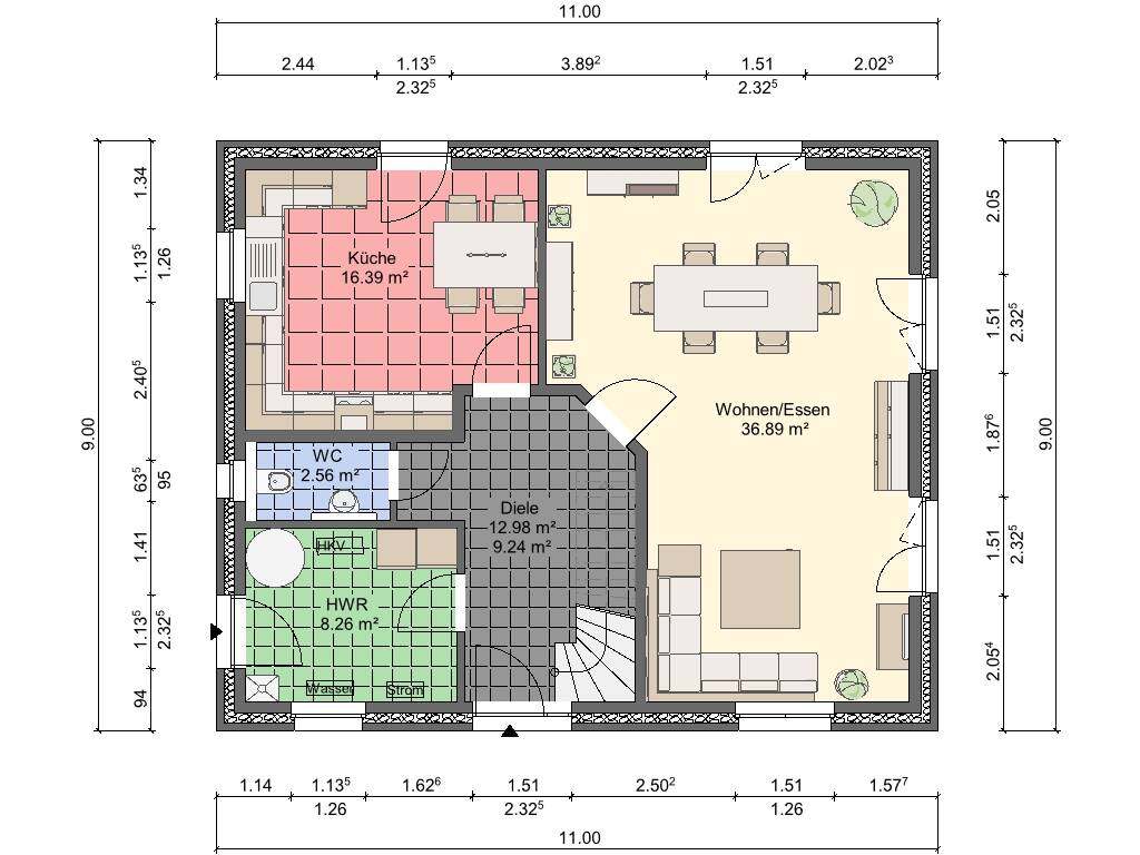
Niedrigenergiehaus mit Wärmepumpe - Neubau in Planung. Machen Sie sich unabhängig von Gas oder Öl und bauen Sie Ihrer Familie ein neues komfortables Zuhause in ruhiger Lage. Der Neubau eines Familienhauses im klassischen Stil mit Ausstattung als Niedrigenergiehaus ist geplant auf einem Baugrundstück in der Gemeinde Engelbrechtsche Wildnis bei Glückstadt (Schleswig-Holstein).Der Grundriss ist familienfreundlich, funktional und gemütlich zugleich. Im EG verfügen Sie über einen großzügigen Wohn- und Essbereich, eine großzügige Küche, einen Hauswirtschaftsraum und ein Gäste-WC. Optimal sind die Zweitausgänge in der Küche und im Hauswirtschaftsraum. Auch vom Wohnbereich gelangen Sie direkt auf die Terrasse bzw. den Garten.In allen Räumen verfügen Sie über viel Tageslicht. Der Ruhebereich im Dachgeschoss bietet Ihnen vier Schlafräume und ein großes Familienbad. DATEN: Massiv gebautes Einfamilienhaus, mit Verblendstein, Grundmaß ca. 9,00 x 11,00 m² Wohnfläche nach DIN ca. 149 m²entsprechend Wohnfläche nach Wohnflächenverordnung ca. 131 m² massive Außen- und Innenwände Dachform wahlweise Satteldach oder KrüppelwalmdachWärmepumpe, Fußbodenheizung kontrollierte Be- und Entlüftungsanlage mit Wärmerückgewinnung Ausstattung garantiert als Niedrigenergiehaus!Unser Preis beinhaltet den Preis des Einfamilienhauses inklusive Kaufpreis für das Grundstück mit einer Größe von 650 m². Es ist bekannt, dass in dieser Region eine Tiefengründung (Bohrpfähle) vorgenommen werden muss. Die hierfür benötigte verstärkte Sohlplatte (Gitterrost) muss ebenfalls berücksichtigt werden. Die Kosten der Tiefengründung / Gitterrost fallen gesondert an. KEINE VERMITTLUNGSPROVISION! Dies ist ein Planungsbeispiel von uns. Wir erstellen Ihnen gerne in einem persönlichen Gespräch ein Angebot nach Ihren Wünschen und Erfordernissen. Auch andere Haustypen können auf diesem Grundstück errichtet werden.
So funktioniert es
- Alle neuen Anzeigen matchen wir kostenlos mit Deinen Suchparametern.
- Passende Angebote senden wir Dir in einer E-Mail pro Tag.
- Du kannst auch verschiedene Suchen anlegen und Dich jederzeit abmelden. Mehr dazu
Wir haben soeben eine E-Mail mit Deinem Suchauftrag an Dich geschickt. – Klicke in dieser Mail auf den Bestätigungslink und schon geht's los. Prüfe ggf. auch Deinen Spamordner.
Es gab ein Problem beim Absenden Deiner E-Mail-Adresse. Bitte versuche es erneut.
WARNUNG: Bitte bestätige Deine E-Mail-Adresse, um regelmäßige Updates zu erhalten.