Kaufpreis 451.878 €
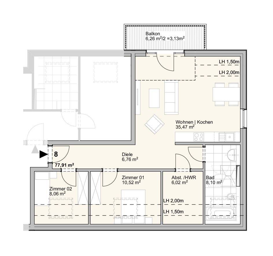
Zimmer 3
Größe 77 m²
21614 Buxtehude
Objektdaten
Veröffentlicht am: 25. März 2026
Baujahr: 2025
Energieausweis: Liegt bei der Besichtigung vor
Danke! Bitte bestätige Deine E-Mail-Adresse – wir haben Dir soeben eine Mail geschickt.
Es gab ein Problem beim Absenden. Bitte versuche es erneut.
Bitte bestätige Deine E-Mail-Adresse, um Updates zu erhalten.
Objektbeschreibung
Detaillierte Informationen zu diesem Neubau-Projekt im Zentrum von Buxtehude erhalten Sie auf unserer Homepage www.na-st.de sowie dem dort zum Downbload bereitstehenden, ausführlichen Projekt-Exposé.Die hier zum Verkauf stehende Wohnung befindet sich in einem Neubau-Objekt mit 9 Wohneinheiten, das die NAST-Projektholding GmbH für die Baufein CHS GmbH & Co. KG im Herzen von Buxtehude projektiert.Das Objekt erfüllt die Vorgaben des KfW Effizienzhaus-Standards 40, so dass diverse Fördermittel der KfW-Bank in Anspruch genommen werden können.Moderne Gestaltung in Verbindung mit hochwertiger und klassischer Massivbauweise, komfortable und auf praktischen Nutzen ausgelegte Grundrissgestaltung, hochwertige Materialien und Objekte sowie der Einsatz modernster Haustechnik inkl. großer Photovoltaikanlage sichern angenehmes Wohnen und hohe Qualität.Das Gebäude und auch die Wohnung ist grundsätzlich barrierefrei und damit vollständig stufenlos sowie mit besonders großzügigen Raum- und Durchgangsabmessungen gestaltet. Ein Aufzug sorgt für die vertikale Erschließung vom Erdgeschoss bis ins Dachgeschoss.Die offene Grundrissgestaltung mit fließenden Räumen sorgt für ein großzügiges und lichtes Wohngefühl. Große bodentiefe Fenster versorgen die Wohnungen bis in die letzten Winklel mit viel Tageslicht. Die Raumhöhe von ca. 2,90m unterstreicht die Großzügigkeit der Gestaltung und ergänzt das luftige Raumgefühl.Für den praktischen Nutzen wurde darauf geachtet, dass der Grundriss sehr gut möblierbar ist und z. B. im Schlafraum ein großer Kleiderschrank gestellt werden kann, ohne dass dies die Raumqualität negativ beeinflusst. Die Wohnung verfügt über einen großzügigen Abstellraum mit Anschlussmöglichkeiten für Waschmaschine und Trockner.Die Kniestockhöhe beträgt ca. 1,20m, so dass auch diese Wände im Dachgeschoss zum möblieren einladen.Exklusive Materialien für die Raum- und Sanitärausstattung u. a. mit Design-Plankenbodenbelag in den Wohn- und Schlafräumen sowie Fliesen im Bad mit Abmessungen bis zu 60cmx60cm runden das Angebot ab.
So funktioniert es
- Alle neuen Anzeigen matchen wir kostenlos mit Deinen Suchparametern.
- Passende Angebote senden wir Dir in einer E-Mail pro Tag.
- Du kannst auch verschiedene Suchen anlegen und Dich jederzeit abmelden. Mehr dazu
Wir haben soeben eine E-Mail mit Deinem Suchauftrag an Dich geschickt. – Klicke in dieser Mail auf den Bestätigungslink und schon geht's los. Prüfe ggf. auch Deinen Spamordner.
Es gab ein Problem beim Absenden Deiner E-Mail-Adresse. Bitte versuche es erneut.
WARNUNG: Bitte bestätige Deine E-Mail-Adresse, um regelmäßige Updates zu erhalten.