Moderner altersgerechter Modulhaus Bungalow inklusive 323 m² Grundstück in Eisenberg!

Kaufpreis 217.990 €
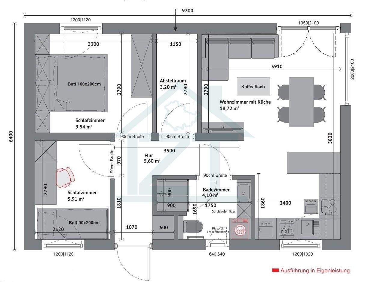
Zimmer 3
Größe 47 m²
07607 Eisenberg

Objektdaten

Veröffentlicht am: 25. März 2026
Energieausweis: Liegt bei der Besichtigung vor
  • Objektbeschreibung

    Exklusiver MODULHAUS Bungalow: Ihr Zuhause der ZukunftVergessen Sie das Wohnen, wie Sie es kennen. Mit unseren innovativen Modulhaus-Konzepten bieten wir Ihnen weit mehr als nur ein gemütliches und hochmodernes Zuhause. Wir präsentieren Ihnen eine nachhaltige und zukunftsorientierte Lösung, die perfekt auf Ihre individuellen Vorstellungen zugeschnitten ist. Erleben Sie mehr Lebensfreude bei weniger Aufwand und geringeren Kosten. Ein entscheidender Vorteil: Die Realisierung Ihres Traumes geschieht in Rekordzeit!Von der ersten Projektierung über die Fertigung bis zur schlüsselfertigen Auslieferung vergehen in der Regel nur 4 bis 6 Monate. Das bedeutet für Sie: schneller einziehen und genießen.Wir bieten Ihnen maximale finanzielle Sicherheit: Mit der Unterzeichnung des Kaufvertrages sichern Sie sich einen garantierten Festpreis für Ihr Haus. Anders als beim traditionellen Bau entfallen so jegliche Risiken durch unvorhergesehene zusätzliche Kosten. Mehr Sicherheit und absolute Planbarkeit für Sie!Ihr neues Zuhause steht für ökologische Nachhaltigkeit und zukunftsorientiertes Wohnen dank einer hocheffizienten, energieeffizienten Bauweise.Dieses Haus wird ganz nach Ihren persönlichen Vorstellungen Realität. Sie planen Ihr MODULHAUS zu 100 % nach Ihren Wünschen - von innen und außen - und erhalten es bezugsfertig übergeben.Die Montage hochwertiger und moderner Materialien garantiert Ihrem MODULHAUS eine beeindruckende Langlebigkeit und Wertstabilität. Übrigens: Diese Häuser sind auf Wunsch auch in Massivbauweise erhältlich! Entdecken Sie jetzt die neue Art zu bauen und zu leben!
    Nach oben scrollen