Kaufpreis 628.800 €
Zimmer 6
Größe 157 m²
01689 Weinböhla
Objektdaten
Veröffentlicht am: 25. März 2026
Energieausweis: Liegt bei der Besichtigung vor
Danke! Bitte bestätige Deine E-Mail-Adresse – wir haben Dir soeben eine Mail geschickt.
Es gab ein Problem beim Absenden. Bitte versuche es erneut.
Bitte bestätige Deine E-Mail-Adresse, um Updates zu erhalten.
Objektbeschreibung
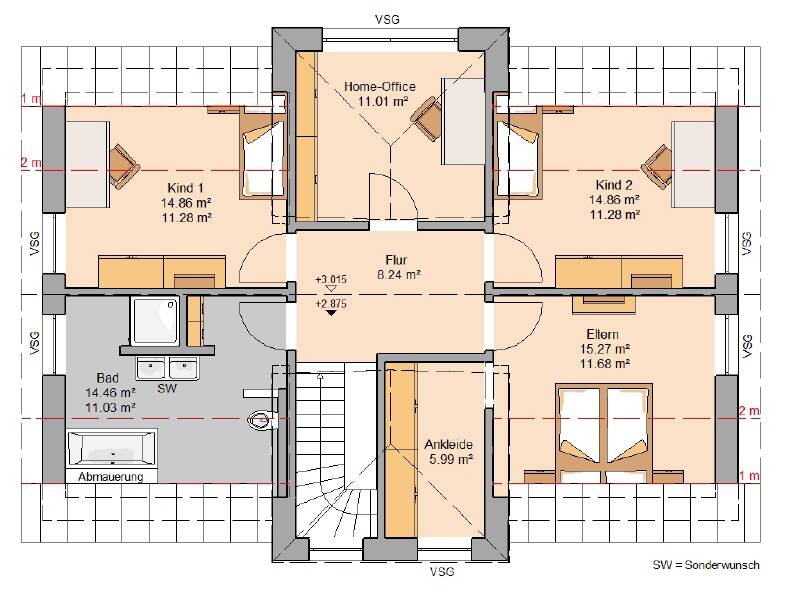
Durch seine großen und lichtdurchfluteten Räume bietet das Massivhaus Auro eine einmalige Wohlfühlatmosphäre. Der Flachdacherker des Familienhauses, der sich über zwei Vollgeschosse erstreckt, macht das Haus zu einem Architekturklassiker mit Charakter.Für ein perfektes Entrée in das Familienhaus sorgt die geräumige Diele in Kombination mit der Treppe. Im Erdgeschoss befindet sich der helle Wohn- und Essbereich mit direkt angrenzender Küche. Das ebenfalls im Erdgeschoss befindliche Gästezimmer mit eigenem Duschbad erreicht man über den Flur, der auch den Zugang zum Hauswirtschaftsraum ermöglicht. Durch große Fenster und Türen erhält die Natur zu jeder Tageszeit Eintritt ins Haus.Das Dachgeschoss erstreckt sich über ca. 70 m². Darin befinden sich das Elternschlafzimmer mit angrenzender Ankleide, zwei große Kinderzimmer, ein geräumiges Home-Office und das geräumige Familienbad. Über einen Flur lassen sich alle Zimmer bequem erreichen.Dieses Haus wird nach Ihren individuellen Wünschen geplant und ausgestattet!
So funktioniert es
- Alle neuen Anzeigen matchen wir kostenlos mit Deinen Suchparametern.
- Passende Angebote senden wir Dir in einer E-Mail pro Tag.
- Du kannst auch verschiedene Suchen anlegen und Dich jederzeit abmelden. Mehr dazu
Wir haben soeben eine E-Mail mit Deinem Suchauftrag an Dich geschickt. – Klicke in dieser Mail auf den Bestätigungslink und schon geht's los. Prüfe ggf. auch Deinen Spamordner.
Es gab ein Problem beim Absenden Deiner E-Mail-Adresse. Bitte versuche es erneut.
WARNUNG: Bitte bestätige Deine E-Mail-Adresse, um regelmäßige Updates zu erhalten.