Kaufpreis 386.800 €
Zimmer 5
Größe 154 m²
07381 Wernburg
Objektdaten
Veröffentlicht am: 25. März 2026
Energieausweis: Liegt bei der Besichtigung vor
Danke! Bitte bestätige Deine E-Mail-Adresse – wir haben Dir soeben eine Mail geschickt.
Es gab ein Problem beim Absenden. Bitte versuche es erneut.
Bitte bestätige Deine E-Mail-Adresse, um Updates zu erhalten.
Objektbeschreibung
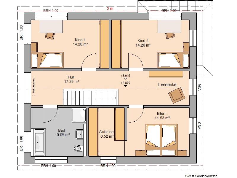
Wenn Sie die Diele des Architektenhauses Allea betreten, haben Sie Blick in den großen Wohn- und Essbereich. Durch bodentiefe Schiebeelemente ist dieser Bereich lichtdurchflutet und Sie können sowohl vom Sofa als auch vom Esstisch in den Garten schauen. Architektonisches Highlight des Familienhauses ist der Erker mit drei Fensterelementen, in dem das Esszimmer untergebracht ist. Die offene Küche grenzt direkt an das Esszimmer, ist aber auch von der Diele aus betretbar. Insgesamt umfassen Küche und Wohn-Essbereich mehr als 46 Quadratmeter. Im Erdgeschoss befinden sich zudem ein Home-Office, eine Garderobe sowie ein WC. Über eine geradläufige Treppe erreichen Sie das Dachgeschoss. Gemütlich ist die Leseecke, in der Sie mit einem schönen Buch sitzen und durch das bodentiefe Glaselement nach draußen in den Garten schauen können. Der Flur wird durch zwei bodentiefe Fensterelemente auf beiden Seiten des Hauses lichtdurchflutet. Vom Flur aus haben Sie Zugang in die Zimmer des Dachgeschosses. Die beiden Kinderzimmer sind mit rund 14 Quadratmetern gleich groß. Das Elternschlafzimmer verfügt über eine eigene Ankleide. Das Familienbadezimmer besitzt neben einer Dusche auch eine Badewanne und ist rund zehn Quadratmeter groß. Hingucker auf der Eingangsseite ist das große Fensterelement über der Tür, das den Flur im Dachgeschoss lichtdurchflutet.Dieses Haus wird nach Ihren individuellen Wünschen geplant und ausgestattet!
So funktioniert es
- Alle neuen Anzeigen matchen wir kostenlos mit Deinen Suchparametern.
- Passende Angebote senden wir Dir in einer E-Mail pro Tag.
- Du kannst auch verschiedene Suchen anlegen und Dich jederzeit abmelden. Mehr dazu
Wir haben soeben eine E-Mail mit Deinem Suchauftrag an Dich geschickt. – Klicke in dieser Mail auf den Bestätigungslink und schon geht's los. Prüfe ggf. auch Deinen Spamordner.
Es gab ein Problem beim Absenden Deiner E-Mail-Adresse. Bitte versuche es erneut.
WARNUNG: Bitte bestätige Deine E-Mail-Adresse, um regelmäßige Updates zu erhalten.