Berlin vor der Tür – bauen in Werneuchens Altstadt, ILB & KfW-40-förderfähig

Kaufpreis 416.254 €
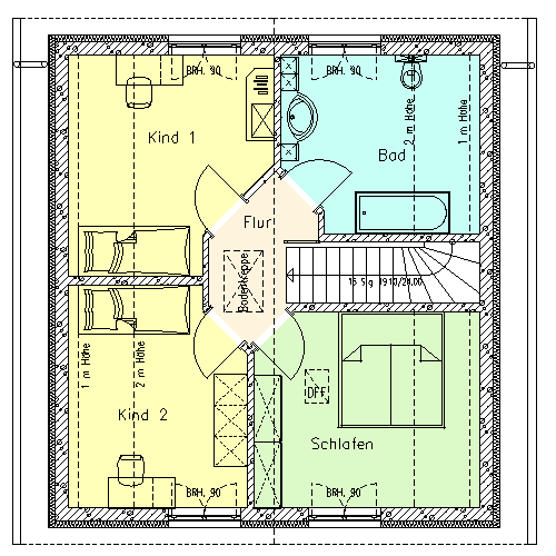
Zimmer 4
Größe 112 m²
16356 Werneuchen

Objektdaten

Veröffentlicht am: 25. März 2026
Energieausweis: Liegt bei der Besichtigung vor
Neu

Über ähnliche Angebote direkt informiert werden

  • Objektbeschreibung

    Individuell geplant und klassisch ausgeführt - da weiß man, was man hat! Ein echter Evergreen unter unseren Häusern. Dieser Haustyp ist das meistgebaute Haus - und zwar aus gutem Grund. Von außen ein echtes Schmuckstück und innen beeindruckt die Geräumigkeit. Und das alles zu einem unschlagbaren Preis-Leistungsverhältnis. Das Angebot beinhaltet:- Grundstückspreis- Erdarbeiten- schlüsselfertige Ausführung (ohne Maler- und Bodenbelagsarbeiten) mit individueller Planung - KfW 40- Standard inkl. Wärmepumpe mit zentraler Lüftungsanlage mit Wärmerückgewinnung

    So funktioniert es

    • Alle neuen Anzeigen matchen wir kostenlos mit Deinen Suchparametern.
    • Passende Angebote senden wir Dir in einer E-Mail pro Tag.
    • Du kannst auch verschiedene Suchen anlegen und Dich jederzeit abmelden. Mehr dazu
    Nach oben scrollen