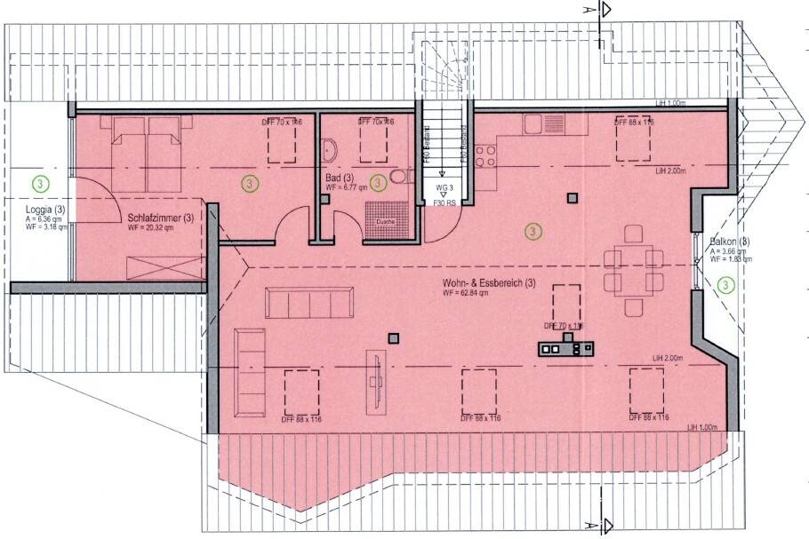
Verkauf – Wohnung Tawern W2.4

Kaufpreis 415.000 €
Zimmer 3
54456 Tawern
Größe 113 m2

Objektdaten

Veröffentlicht am: 25. März 2026
Baujahr: 2023
Energieausweis: Liegt bei der Besichtigung vor
Neu

Über ähnliche Angebote direkt informiert werden

  • Objektbeschreibung

    Top Wohnanlage Neubau von 30 modernen Eigetumswohnungen im Ortskern von 54456 Tawern denoch sonnig und ruhig gelegen.· Effizienshaus 40 nach der Wärmeschutzverordnung GEG2020 gebaut· hochwäremisolliert· 3 fach Isolierverglasung verglasung· Fussbodenheizung in allen Räumen einzeln regelbar· Heizsystem; Luft- Wasser Wärmepumpe mit Puffer und Ladespeicher· malerfertiger Innenausbau· Ausbauwünsche finden noch berücksichtigung· Provisionsfreier Verkauf für Sie als Käufer· wir beraten Sie ausführlich auch vor Ort...· Top gelegen zum nahen Grenzübergang Grevenmcher ( Lux)· beste Nahversorgung und Ärzt im Ort· Kindergarten ( Kita) und Grundschule in Tawern

    So funktioniert es

    • Alle neuen Anzeigen matchen wir kostenlos mit Deinen Suchparametern.
    • Passende Angebote senden wir Dir in einer E-Mail pro Tag.
    • Du kannst auch verschiedene Suchen anlegen und Dich jederzeit abmelden. Mehr dazu
    Nach oben scrollen