Kaufpreis 254.200 €
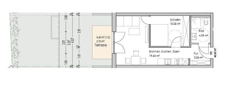
Zimmer 2
Größe 40 m²
85051 Ingolstadt
Objektdaten
Veröffentlicht am: 25. März 2026
Frei ab: 31. Dezember 2027
Energieausweis: Liegt bei der Besichtigung vor
Danke! Bitte bestätige Deine E-Mail-Adresse – wir haben Dir soeben eine Mail geschickt.
Es gab ein Problem beim Absenden. Bitte versuche es erneut.
Bitte bestätige Deine E-Mail-Adresse, um Updates zu erhalten.
Objektbeschreibung
• KNN-Standard – vergünstige KfW Kredite
Mit dem Förderprogramm Klimafreundlicher Neubau, kurz KNN, hat die KfW-Bank ein attraktives Instrument zur Neubauförderung aufgelegt, das nicht nur für Singles und Paare, sondern auch für Familien gut geeignet ist.
• energieeffiziente Luftwärmepumpe
• gute Infrastruktur
• nah am Kompetenzzentrum für militärische Flugsysteme von Airbus Defence an Space
• Kindergärten, Grundschulen, Haupt- und Realschulen, Gymnasien im direkten Umfeld
• Lebensmittelläden, Apotheken, Ärzte, Friseure und Banken im Umkreis von 3 km
• individuell planbare Grundrisse möglich
• Festpreis schlüsselfertig mit allen baulichen ebenkosten
• Wände in Ziegelbauweise, wasserdichter Betonkeller
• Fußbodenheizung
• geschmackvolle Ausstattung
• bodenebene Dusche im Haupt-Bad
• Fenster nach KfW-Berechnung, 3-Scheiben-Verglasung
• sommerlicher Wärmeschutz durch elektrische Jalousien
• weitere Wohnungen im Objekt verfügbar
So funktioniert es
- Alle neuen Anzeigen matchen wir kostenlos mit Deinen Suchparametern.
- Passende Angebote senden wir Dir in einer E-Mail pro Tag.
- Du kannst auch verschiedene Suchen anlegen und Dich jederzeit abmelden. Mehr dazu
Wir haben soeben eine E-Mail mit Deinem Suchauftrag an Dich geschickt. – Klicke in dieser Mail auf den Bestätigungslink und schon geht's los. Prüfe ggf. auch Deinen Spamordner.
Es gab ein Problem beim Absenden Deiner E-Mail-Adresse. Bitte versuche es erneut.
WARNUNG: Bitte bestätige Deine E-Mail-Adresse, um regelmäßige Updates zu erhalten.