Warmmiete 847 €
Zimmer 2
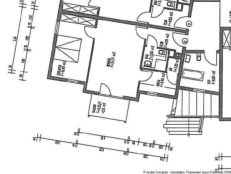
Größe 59 m²
01187 Dresden
Objektdaten
Veröffentlicht am: 25. März 2026
Frei ab: 1. Mai 2026
Kaltmiete 697 €
Baujahr: 1997
Energieausweis: Liegt bei der Besichtigung vor
Danke! Bitte bestätige Deine E-Mail-Adresse – wir haben Dir soeben eine Mail geschickt.
Es gab ein Problem beim Absenden. Bitte versuche es erneut.
Bitte bestätige Deine E-Mail-Adresse, um Updates zu erhalten.
Objektbeschreibung
ALLES, was man braucht und barrierefrei ! Das Angebot richtet sich insbesondere an Menschen -bevorzugt an Paare- mit Betreuungsbedarf, Pflegegrad und Nutzern des Betreuten Wohnen. Bevorzugt an Paare.Es handelt sich um einen Neubau. Die schöne 2-Zimmer- Wohnung auf 59 m² mit Duschbad und WC ist besonders für Paare geeignet. Ein separater Abstellraum befindet sich in der Wohnung. Die kleine Küche ist separat und hat ein Fenster und Zugang zum Abstell-/Vorratsraum.Ein vom großzügigen Wohnbereich zugänglicher Balkon bietet einen großartigen Blick über die Stadt. Das gesamte Objekt ist barrierefrei, mit Lift, separates Kellerabteil, separatem Waschmaschinenstellplatz im Keller und einem Wintergarten und Gemeinschaftsflächen im Innnen- und Außenbereich. Die Wohnung hat einen wischbaren Bodenbelag, Bad gefliest. Bei Bedarf kann separat ein PKW-Stellplatz angemietet werden.
So funktioniert es
- Alle neuen Anzeigen matchen wir kostenlos mit Deinen Suchparametern.
- Passende Angebote senden wir Dir in einer E-Mail pro Tag.
- Du kannst auch verschiedene Suchen anlegen und Dich jederzeit abmelden. Mehr dazu
Wir haben soeben eine E-Mail mit Deinem Suchauftrag an Dich geschickt. – Klicke in dieser Mail auf den Bestätigungslink und schon geht's los. Prüfe ggf. auch Deinen Spamordner.
Es gab ein Problem beim Absenden Deiner E-Mail-Adresse. Bitte versuche es erneut.
WARNUNG: Bitte bestätige Deine E-Mail-Adresse, um regelmäßige Updates zu erhalten.