Kaufpreis 60.000 €
Zimmer 3
Größe 70 m²
98667 Schleusegrund
Objektdaten
Veröffentlicht am: 25. März 2026
Frei ab: 6. Februar 2026
Energieausweis: Liegt bei der Besichtigung vor
Danke! Bitte bestätige Deine E-Mail-Adresse – wir haben Dir soeben eine Mail geschickt.
Es gab ein Problem beim Absenden. Bitte versuche es erneut.
Bitte bestätige Deine E-Mail-Adresse, um Updates zu erhalten.
Objektbeschreibung
Mitten im Herzen von Schönbrunn befindet sich dieses attraktive, freistehende Zweifamilienhaus in
ruhiger Lage. Die hervorragende Infrastruktur ermöglicht kurze Wege zu allem, was man im Alltag
braucht: Ärzte, Grundschule und Kindergarten, Supermarkt, Tankstelle oder auch das Terrassenbad
sind in wenigen Minuten zu Fuß oder mit dem Auto erreichbar.
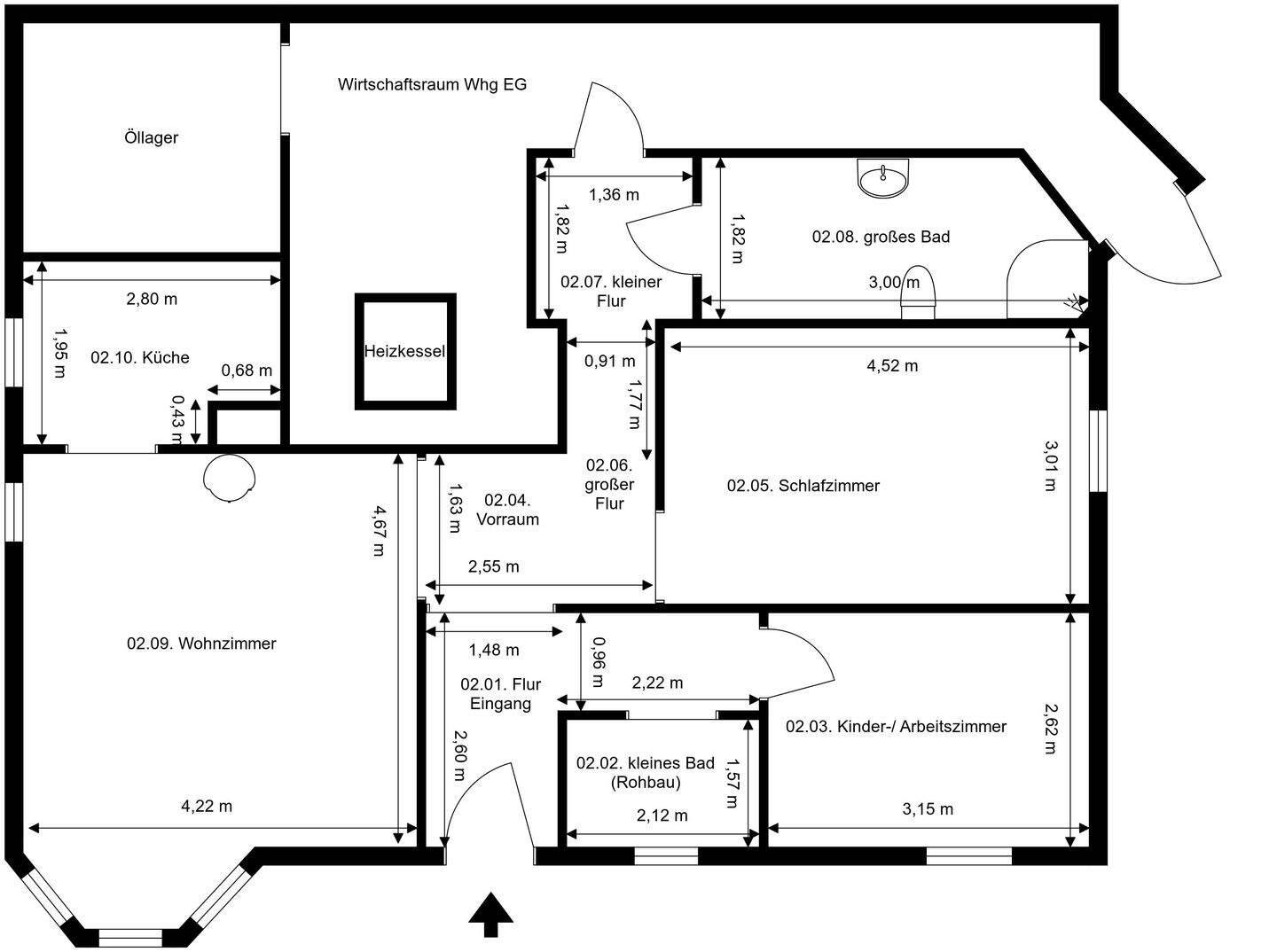
Zum Verkauf steht eine ansprechende 3-Raum Wohnung im Untergeschoss. Auf rund 70 m² erwarten
Sie ein großes Wohnzimmer mit Kaminofen, eine Küche mit EBK und Einbaugeräten, ein
Badezimmer mit WC und Dusche und ein Gäste-WC im Rohbau, ein Schlaf- und ein Arbeits- oder
Kinderzimmer.
Die hellen, freundlich gestalteten Räume schaffen eine angenehme Wohnatmosphäre und bieten
eine ideale Kombination aus Komfort, Funktionalität und zentraler Lage.
Trotz der unmittelbaren Nähe zum Ortszentrum genießen Sie hier eine ruhige Wohnlage. Der ca.
2000 errichtete Wohnbungalow überzeugt durch seine solide Bauweise. Nach kleinen
Renovierungsarbeiten ist die Wohnung sofort bezugsfertig.
**Geschossaufteilung**
*Untergeschoss*
Flur, kleines Bad im Rohbau, Arbeits- Gäste- oder Kinderzimmer, Schlafzimmer, Bad, Küche,
Wohnzimmer
So funktioniert es
- Alle neuen Anzeigen matchen wir kostenlos mit Deinen Suchparametern.
- Passende Angebote senden wir Dir in einer E-Mail pro Tag.
- Du kannst auch verschiedene Suchen anlegen und Dich jederzeit abmelden. Mehr dazu
Wir haben soeben eine E-Mail mit Deinem Suchauftrag an Dich geschickt. – Klicke in dieser Mail auf den Bestätigungslink und schon geht's los. Prüfe ggf. auch Deinen Spamordner.
Es gab ein Problem beim Absenden Deiner E-Mail-Adresse. Bitte versuche es erneut.
WARNUNG: Bitte bestätige Deine E-Mail-Adresse, um regelmäßige Updates zu erhalten.