Willkommen in dieser hochwertigen 4-Zimmer-Neubauwohnung mit KfW-40-QNG und Wärmepumpe. Ideal für Familien oder Berufstätige, die nachhaltig leben möchten.
Objektdaten
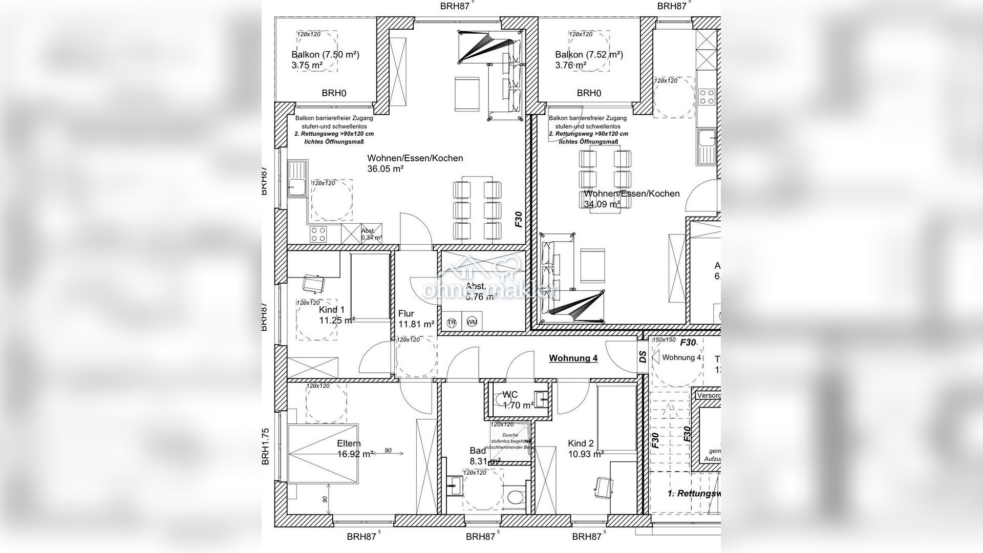
Objektbeschreibung
Willkommen in Ihrem neuen Zuhause! Diese hochwertige 4-Zimmer-Neubauwohnung im 1. Obergeschoss überzeugt durch einen durchdachten Grundriss, helle Räume und eine moderne, energieeffiziente Ausstattung. Mit einer Wohnfläche von ca. 106,82 m² bietet die Wohnung ausreichend Platz für Familien, Paare mit Platzbedarf oder anspruchsvolle Berufstätige. Dank KfW-40-QNG-Standard, Wärmepumpe und Photovoltaikanlage profitieren Sie von sehr niedrigen Betriebskosten – nachhaltig und zukunftssicher. Eckdaten auf einen Blick: •Wohnfläche: ca. 106,82 m² •Zimmer: 4 •Etage: 1. Obergeschoss •Kaltmiete: 1.370 € •Betriebskosten: 150 € •Stellplatz: 50 € •Gesamtmiete: 1.570 € Balkon, Terrasse, Garten, Gäste-WC, Barrierefrei, Fliesen Bemerkungen: •Energieeffizient nach KfW-40 QNG Standard •Photovoltaikanlage & Wärmepumpe – geringe Nebenkosten, nachhaltige Energie •Schüco-Fenster, dreifach verglast, außen schwarz / innen weiß •Elektrische Rollläden in allen Räumen •Fußbodenheizung für ein angenehmes Wohnklima •Moderne, stilvolle Bäder •Hochwertige Bodenbeläge •Balkon oder Terrasse zu jeder Wohnung •PKW-Stellplatz (50 €/Monat, inkl. 1 Fahrradstellplatz) •Fahrradstellplätze für alle Bewohner •Erstbezug – bezugsfertig ab 01.02.2026Lagebeschreibung
Die Wohnung befindet sich in ruhiger Lage in der Wissinger Mark mit guter Anbindung nach Osnabrück. Einkaufsmöglichkeiten, Schulen, Kindergärten sowie medizinische Versorgung sind in kurzer Zeit erreichbar. Öffentliche Verkehrsmittel befinden sich in fußläufiger Entfernung.
Infrastruktur (im Umkreis von 5 km):
Apotheke, Lebensmittel-Discount, Allgemeinmediziner, Kindergarten, Grundschule, Hauptschule, Realschule, Gymnasium, Gesamtschule, Öffentliche Verkehrsmittel
So funktioniert es
- Alle neuen Anzeigen matchen wir kostenlos mit Deinen Suchparametern.
- Passende Angebote senden wir Dir in einer E-Mail pro Tag.
- Du kannst auch verschiedene Suchen anlegen und Dich jederzeit abmelden. Mehr dazu


