Kaufpreis 414.820 €
Zimmer 4
Größe 129 m²
23623 Ahrensbök
Objektdaten
Veröffentlicht am: 25. März 2026
Energieausweis: Liegt bei der Besichtigung vor
Danke! Bitte bestätige Deine E-Mail-Adresse – wir haben Dir soeben eine Mail geschickt.
Es gab ein Problem beim Absenden. Bitte versuche es erneut.
Bitte bestätige Deine E-Mail-Adresse, um Updates zu erhalten.
Objektbeschreibung
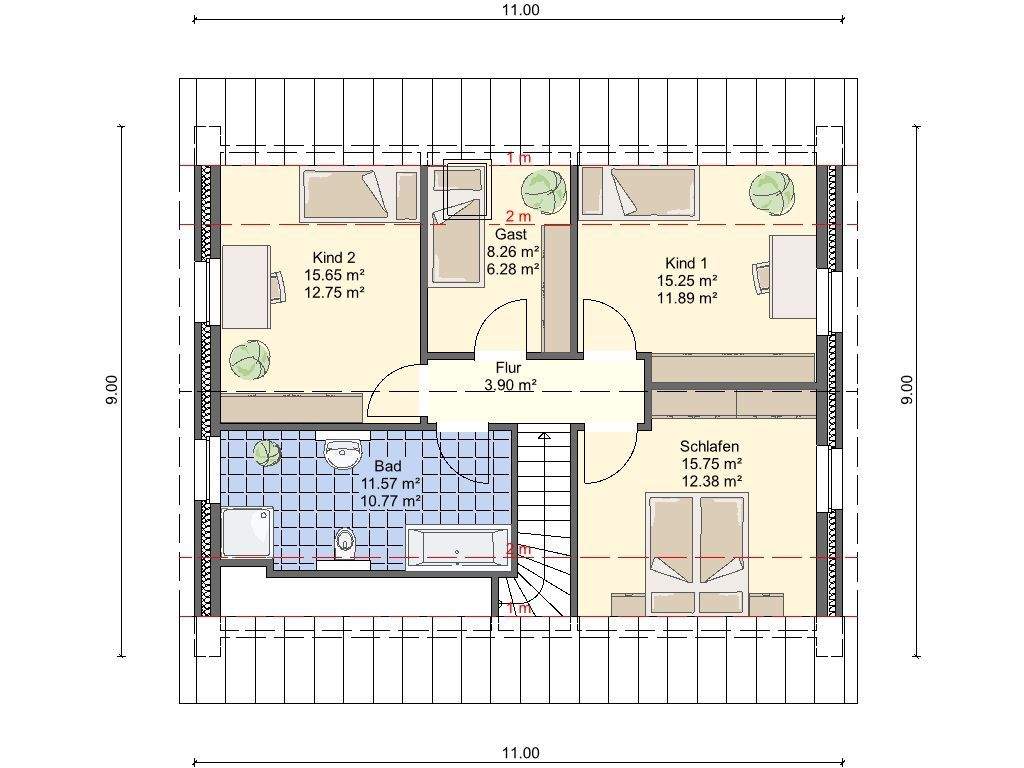
Familiendomizil in naturnaher Lage - Niedrig-Energiehaus EH40 mit Wärmepumpe und PV-AnlageMachen Sie sich unabhängig von Gas oder Öl und bauen Sie Ihrer Familie ein neues Zuhause mit offenem, jungem Konzept. Der Grundriss überzeugt mit klaren Strukturen, so dass der Platz im Inneren optimal genutzt wird. Das Erdgeschoss ist der Mittelpunkt für das Leben im Haus. Ein kombinierter Wohn- und Essbereich inklusive offener Küche lädt zu gemeinsamen Aktivitäten ein. Die Fenster- und Terrassenelemte bieten Ihnen viel Tageslicht aus zwei Himmelsrichtungen und garantieren damit ein sonniges Wohnerlebnis. Das Gäste-WC und der Hauswirtschafts-/Technikraum befinden sich ebenfalls hier im Erdgeschoss. Das Dachgeschoss ist der Ruheort für die Familie; die pfiffige Aufteilung bietet drei gemütliche Schlafräume, jeweils mit zusätzlichem Dachflächenfenster, sowie ein großes Familienbadezimmer. DATEN:Einfamilienhaus mit Verblendfassade, Grundmaß ca. 8,50 x 10,00 mWohnfläche nach DIN: 129,37 m²Massive Außen- und InnenwändeWärmepumpe, Fußbodenheizung und PV-AnlageKontrollierte Be- und Entlüftungsanlage mit WärmerückgewinnungAusstattung garantiert als Niedrigenergiehaus!Geplant ist der Neubau dieses Einfamilienhauses auf einem Baugrundstück in Barghorst, Gemeinde Ahrensbök. Unser Preis beinhaltet den Preis des Familienhauses inklusive Kaufpreis für das jeweilige Grundstück. Hierbei handelt es sich um ein Planungsbeispiel. Gerne ermitteln wir gemeinsam in einem kostenlosen ausführlichen Beratungsgespräch eine detaillierte Gesamtkostenaufstellung und planen mit Ihnen Ihr persönliches Haus. Auch andere Haustypen können auf diesem Grundstück errichtet werden. Gestalten Sie mit uns Ihren Haustraum. Wir freuen uns auf das Gespräch mit Ihnen.
So funktioniert es
- Alle neuen Anzeigen matchen wir kostenlos mit Deinen Suchparametern.
- Passende Angebote senden wir Dir in einer E-Mail pro Tag.
- Du kannst auch verschiedene Suchen anlegen und Dich jederzeit abmelden. Mehr dazu
Wir haben soeben eine E-Mail mit Deinem Suchauftrag an Dich geschickt. – Klicke in dieser Mail auf den Bestätigungslink und schon geht's los. Prüfe ggf. auch Deinen Spamordner.
Es gab ein Problem beim Absenden Deiner E-Mail-Adresse. Bitte versuche es erneut.
WARNUNG: Bitte bestätige Deine E-Mail-Adresse, um regelmäßige Updates zu erhalten.