Objektdaten
Objektbeschreibung
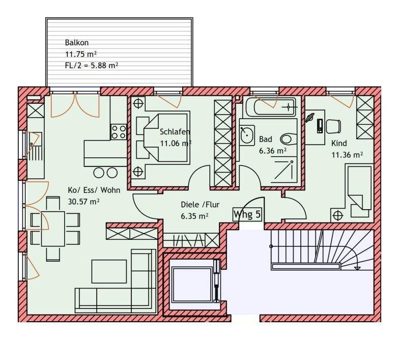
Bei der angebotenen Wohnung handelt es sich um eine 3-Zimmer Wohnung im 1. Obergeschoss, mit einem ca. 11,75 m² großen Ost-Balkon.Die Bauausführung erfolgt in massiver Ziegelbauweise mit Wärmedämmverbundsystem, sowie 3fach verglasten Fenstern.Beheizt wird die Wohnanlage mit einer Wärmepumpe.Der Baubeginn ist für Frühjahr 2026 vorgesehen, die Fertigstellung wird ca. im Sommer 2027 erfolgen.Auf dem Grundstück entsteht ein Mehrfamilienhaus mit Garagen, Carports, Außenstellplätzen und Aufzug, mit insgesamt 8 Wohneinheiten.Auf Wunsch erhalten Sie gerne das Gesamtexposé inkl. Baubeschreibung und Preisliste.Energieausweis:Der Energieausweis wird gerade erstellt und liegt zur Besichtigung vor.Ähnliche Angebote
So funktioniert es
- Alle neuen Anzeigen matchen wir kostenlos mit Deinen Suchparametern.
- Passende Angebote senden wir Dir in einer E-Mail pro Tag.
- Du kannst auch verschiedene Suchen anlegen und Dich jederzeit abmelden. Mehr dazu




