3- Zimmer- Neubauwohnung in beliebter Lage – 1. OG W. 3

Kaufpreis 546.250 €
Zimmer 3
Größe 95 m²
51375 Leverkusen

Objektdaten

Veröffentlicht am: 25. März 2026
Energieausweis: Liegt bei der Besichtigung vor
Neu

Über ähnliche Angebote direkt informiert werden

  • Objektbeschreibung

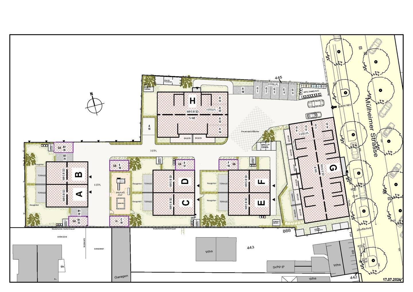
    In zentraler Lage von Leverkusen-Schlebusch entsteht ein grünes Wohnquartier mit insgesamt 3 Doppelhäusern und 2 Mehrfamilienhäusern.Die hier angebotene Wohnung befindet sich in einem der beiden Mehrfamilienhäuser (Haus G) mit 8 hochwertigen Neubauwohnungen. Die Wohnungen haben eine Größe von 2 bis 4 Zimmern und bieten Wohnflächen von ca. 59 m² bis ca. 116 m².Jede Wohnung in Haus G ist barrierefrei über einen Aufzug zu erreichen. Die Architektur zeichnet sich durch ein zeitgemäßes offenes Wohnkonzept aus: Von einem großzügigen Wohn-Essbereich mit offener Küche haben Sie Zugang zur Terrasse oder einem Balkon, wo Sie entspannt den Feierabend genießen können.Die modernen Badezimmer sind mit hochwertigen Sanitärobjekten ausgestattet und bieten einen hohen Komfort. Für ausreichend Stauraum sorgt der in jede Wohnung integrierte Abstellraum. Im Erdgeschoss steht ein Waschraum mit Anschluss für die Waschmaschine zur Verfügung. Stellplätze können entweder als Einzelgarage im Erdgeschoss des Hauses oder als Außenstellplatz erworben werden. Ihr Fahrrad können Sie in Fahrradboxen sicher abstellen.Das Wohnhaus wird durch ein energieeffizientes Heizsystem mit einer Wärmepumpe und einer Photovoltaikanlage beheizt. Dank einer starken Dämmung des Gebäudes und dreifachverglasten Fenstern können Sie Ihre Heizkosten niedrig halten und zugleich im Sommer ein angenehmes Raumklima genießen.Sowohl auf die Grundrisse als auch auf die Ausstattung können Sie noch Einfluss nehmen. So entsteht für Sie ein individuell gestalteter Wohnraum, der perfekt auf Ihre Bedürfnisse und Vorstellungen abgestimmt ist.Sichern Sie sich jetzt eine der begehrten Einheiten in diesem Neubauprojekt und freuen Sie sich auf Ihr neues, komfortables Zuhause in Leverkusen-Schlebusch.

    Ähnliche Angebote

    So funktioniert es

    • Alle neuen Anzeigen matchen wir kostenlos mit Deinen Suchparametern.
    • Passende Angebote senden wir Dir in einer E-Mail pro Tag.
    • Du kannst auch verschiedene Suchen anlegen und Dich jederzeit abmelden. Mehr dazu
    Nach oben scrollen