Objektdaten
Objektbeschreibung
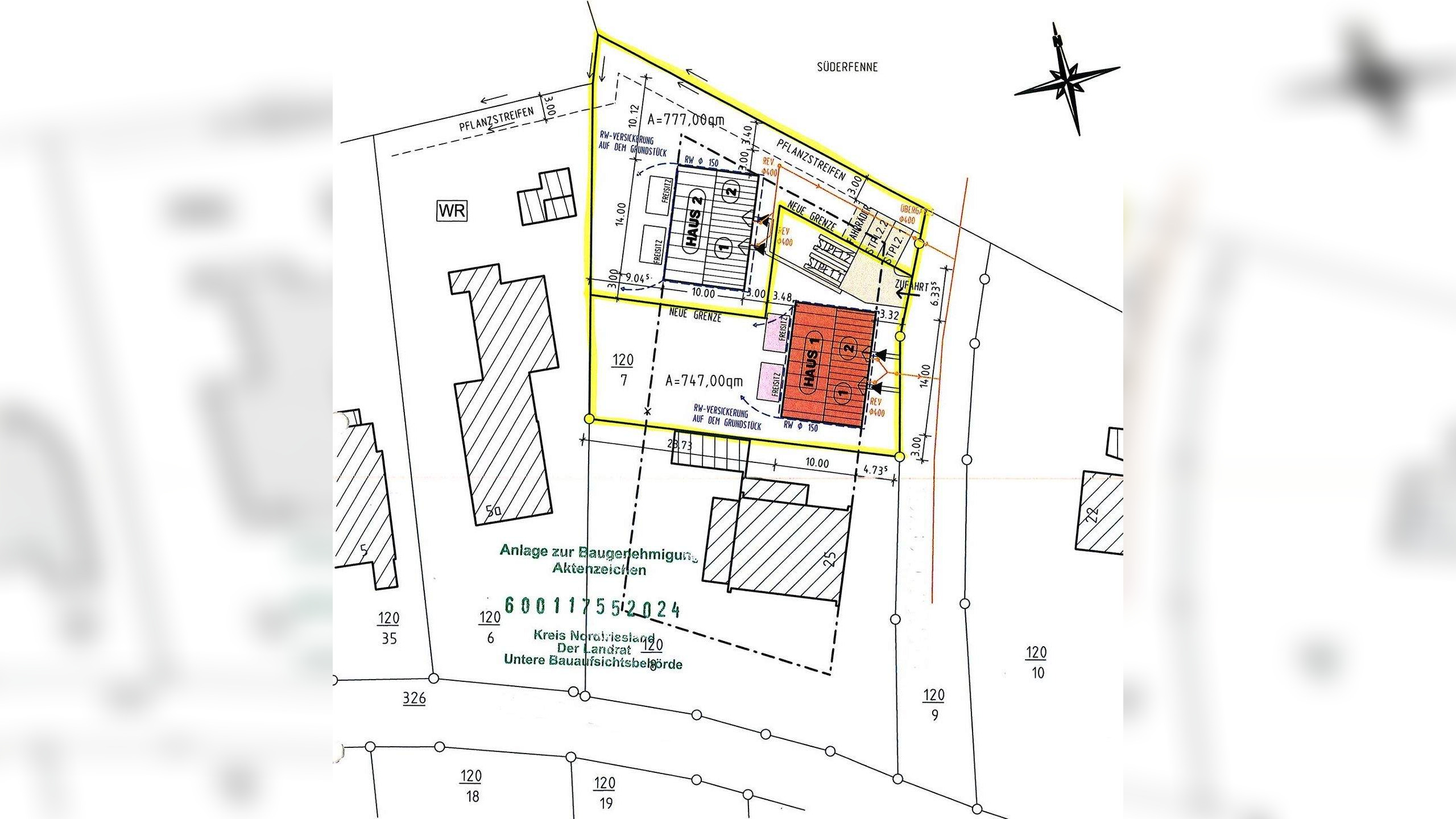
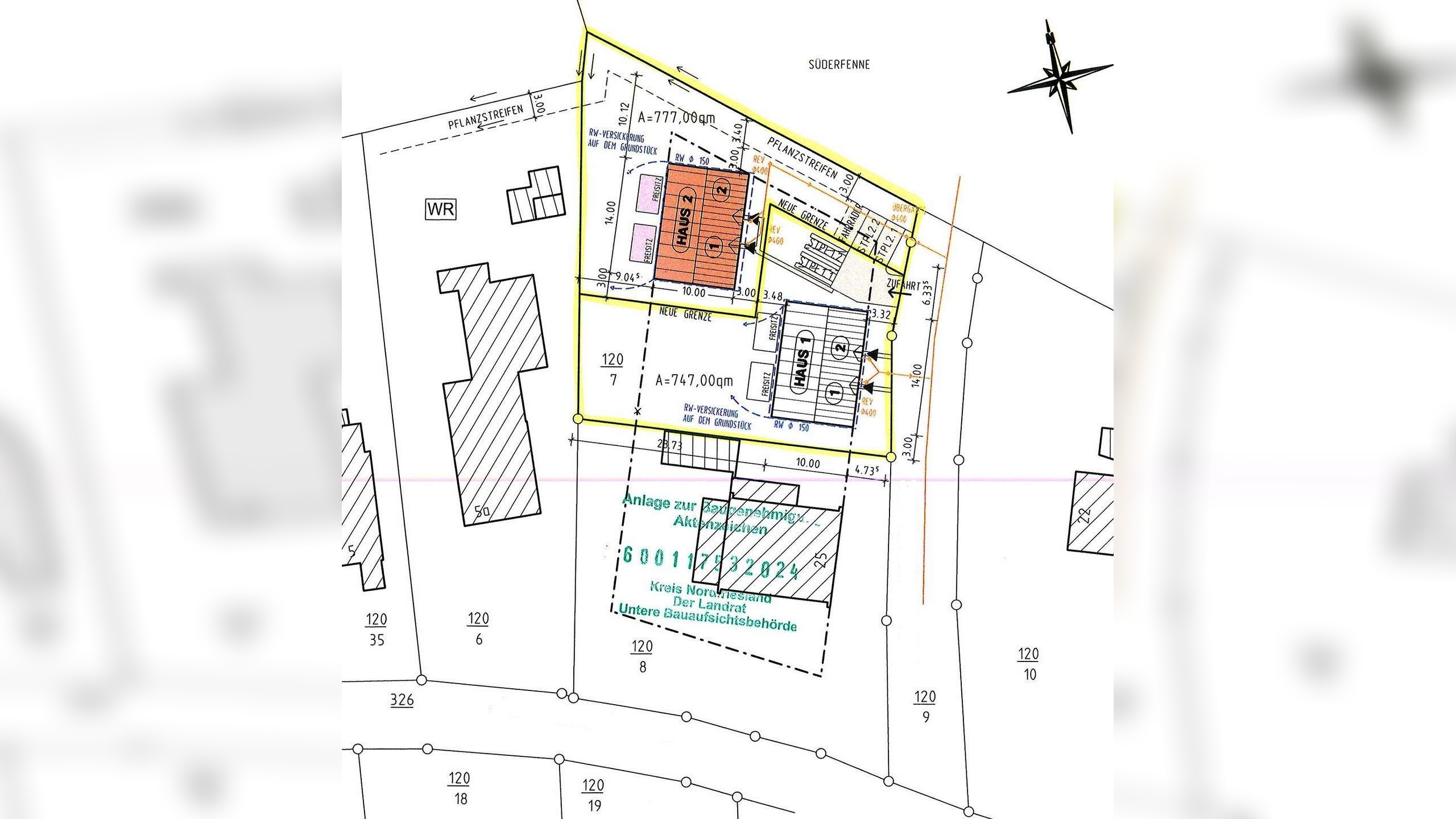
Ein Projekt in Top-Lage inklusive gültiger Baugenehmigung: Das großzügige Grundstück liegt am Ende einer Sackgasse im begehrten Ortsteil Ording – nur fünf Grundstücke trennen dieses Schmuckstück vom Deich. Richtung Norden erstrecken sich nur noch Felder und Wiesen, genau richtig, um zur Ruhe zu kommen. Zum jetzigen Zeitpunkt stehen noch zwei Altbestände auf dem Grundstück, eine zusammenhängende Wohnanlage aus den späten 60er Jahren, die mit sechs genehmigten Ferienwohnungen noch einschließlich bis zum 31. August 2026 an einen Betreiber zur Ferienvermietung verpachtet ist. Einem lukrativen Neubau stünde danach nichts mehr im Wege, ein solcher ist bereits behördlich genehmigt. Möglich ist zum Beispiel die Errichtung von zwei Doppelhäusern mit jeweils einer Ferienwohnung – die dazu erteilte Baugenehmigung sowie die dieser zugrundeliegenden Planung ist im Kaufpreis enthalten.Ähnliche Angebote
So funktioniert es
- Alle neuen Anzeigen matchen wir kostenlos mit Deinen Suchparametern.
- Passende Angebote senden wir Dir in einer E-Mail pro Tag.
- Du kannst auch verschiedene Suchen anlegen und Dich jederzeit abmelden. Mehr dazu




