Objektdaten
Objektbeschreibung
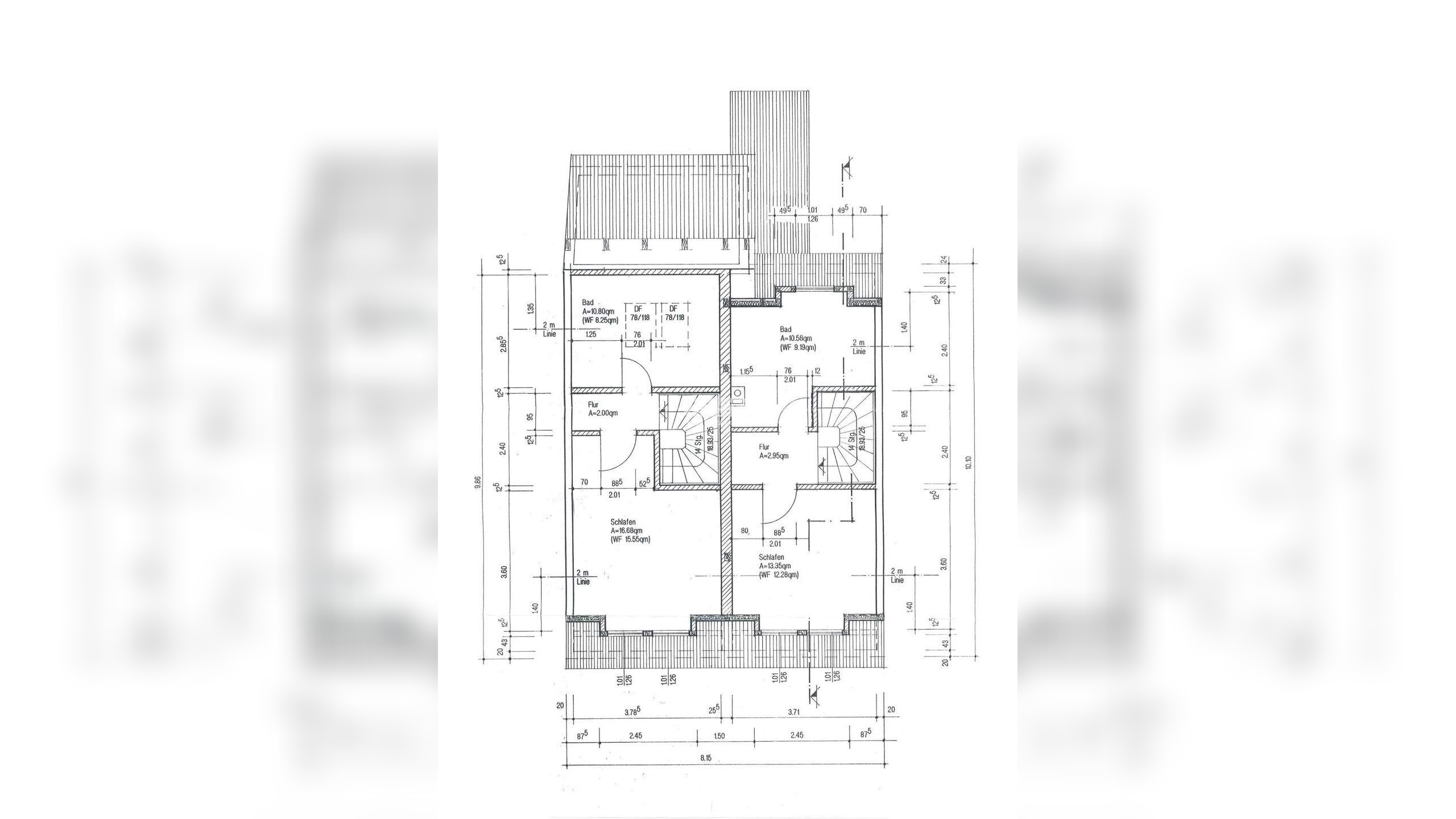
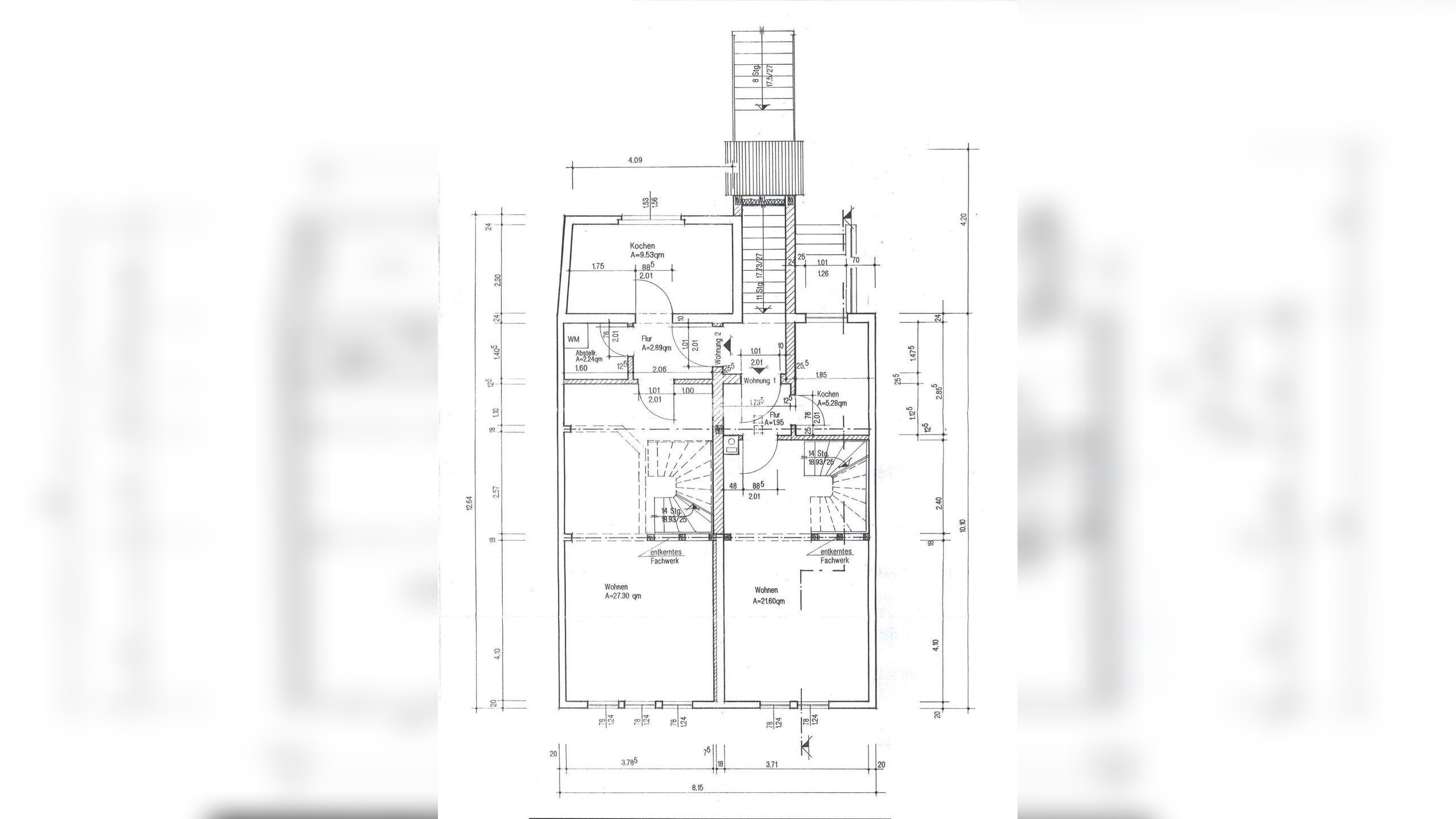
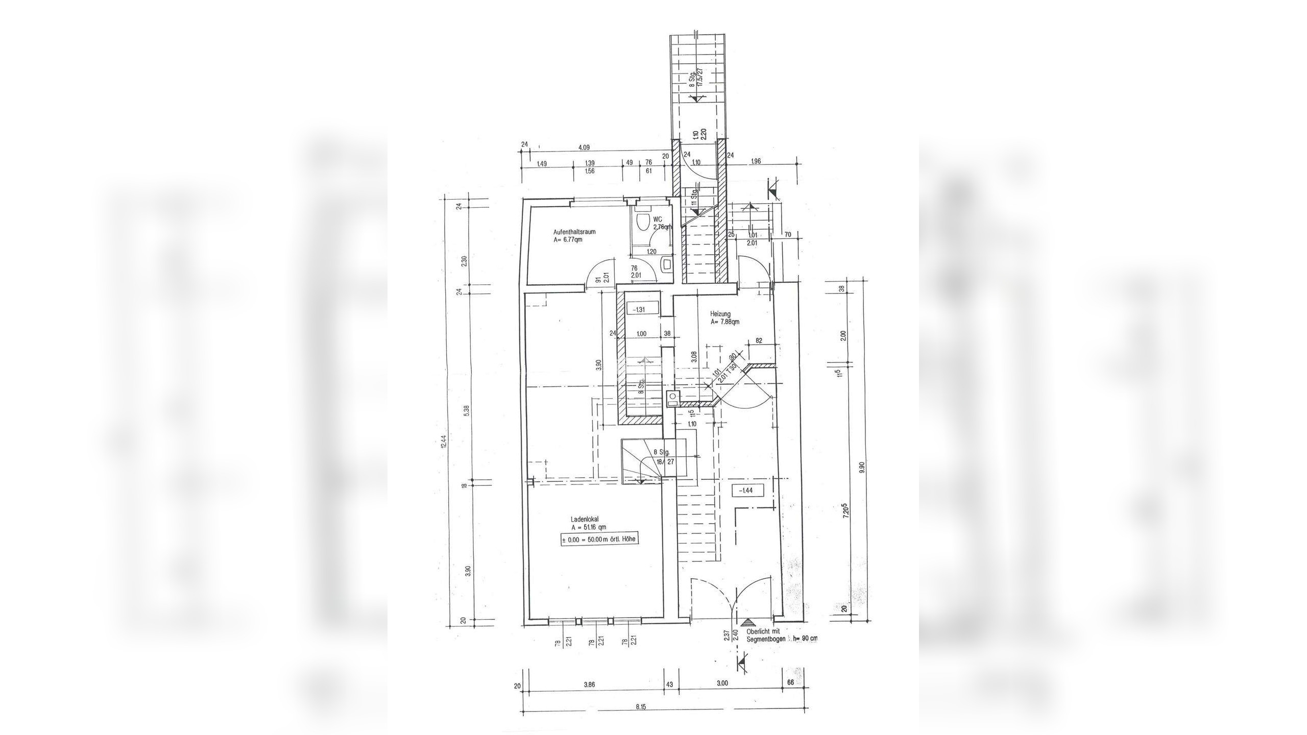
Wir präsentieren Ihnen ein charmantes Wohn- und Geschäftshaus, das um 1879 errichtet wurde und durch seinen besonderen Charakter überzeugt. Das Gebäude vereint historische Substanz mit vielseitigenNutzungsmöglichkeiten - ideal für Eigennutzer, Mehrgenerationen oderInvestoren.Das Haus umfasst eine Gewerbeeinheit im Erdgeschoss sowie zweigroßzügige Maisonette-Wohnungen in den Obergeschossen. BeideWohnungen im Obergeschoss sind vermietet, die Einheit im Erdgeschossbeherbergt Vermietungspotential. Bereits erfolgte Renovierungsarbeitenim Erdgeschoss schaffen die Grundlage für eine schnelle Vermietung zumarktgerechten Konditionen.ENERGIEAUSWEISAusweisart: VerbrauchsausweisEnergiekennwert: 221,04 kWh(m²-a)Energieeffizienzklasse: GEnergieträger: Gas/StromAusstelldatum: 23.01.2017Baujahr technische Anlage: 2013So funktioniert es
- Alle neuen Anzeigen matchen wir kostenlos mit Deinen Suchparametern.
- Passende Angebote senden wir Dir in einer E-Mail pro Tag.
- Du kannst auch verschiedene Suchen anlegen und Dich jederzeit abmelden. Mehr dazu




