Hoch die Hände, Wochenende im eigenen Garten: Bauen Sie Ihr KfW40 Premium-Traumhaus.

Kaufpreis 556.468 €
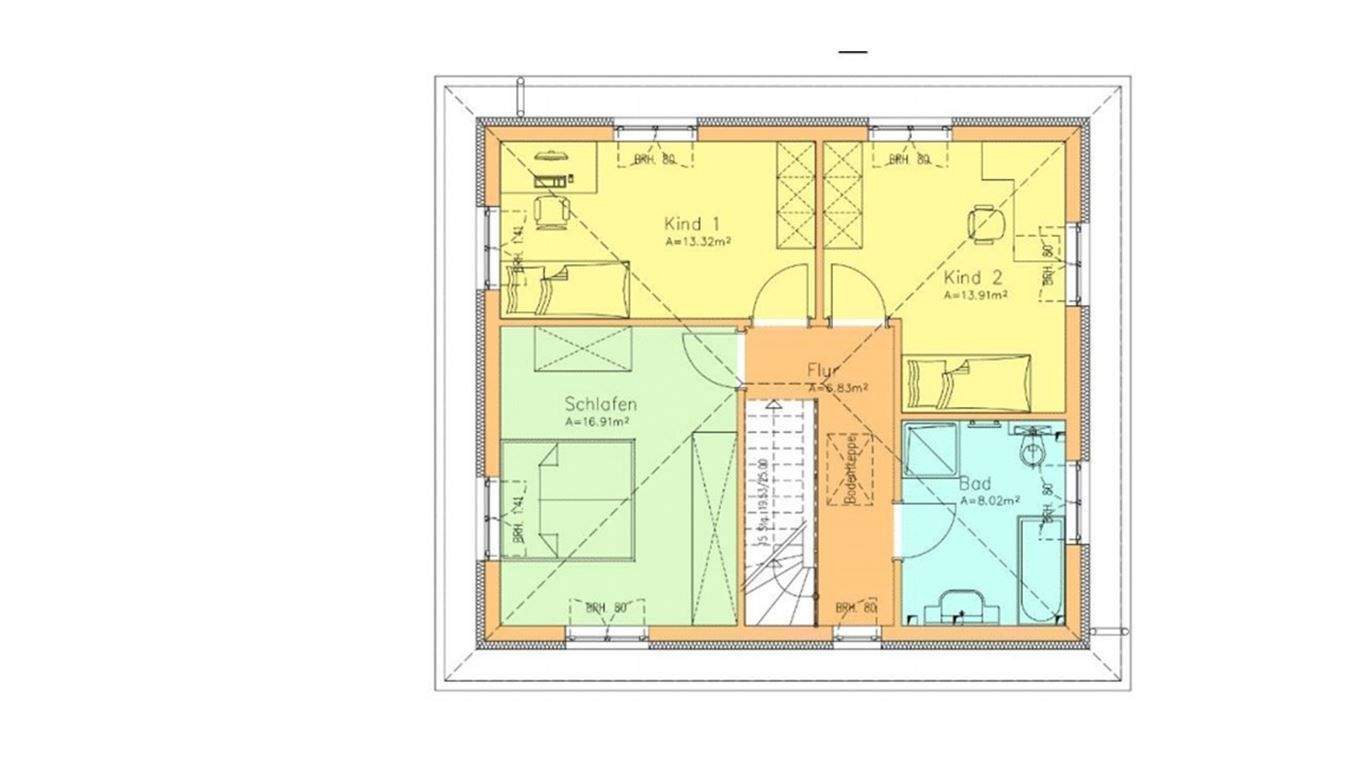
Zimmer 4
Größe 120 m²
12685 Berlin

Objektdaten

Veröffentlicht am: 25. März 2026
Energieausweis: Liegt bei der Besichtigung vor
Neu

Über ähnliche Angebote direkt informiert werden

  • Objektbeschreibung

    Individuell geplant und als Raumwunder einfach nur schön großzügig für Sie!Hier verbindet sich mediterranes Flair mit städtischem Komfort. Durch die zeitlose Architektur und reichlich Platz in zwei Vollgeschossen ist die Stadtvilla im wahrsten Sinne des Wortes ein "moderner Klassiker". Bodentiefe Fensterelemente vermitteln Großzügigkeit und garantieren lichtdurchflutete Räume.Das Angebot beinhaltet:- Grundstückspreis- Erdarbeiten- schlüsselfertige Ausführung (ohne Maler- und Bodenbelagsarbeiten) mit individueller Planung - KfW 40-Standard inkl. Wärmepumpe mit zentraler Lüftungsanlage mit Wärmerückgewinnung

    Ähnliche Angebote

    So funktioniert es

    • Alle neuen Anzeigen matchen wir kostenlos mit Deinen Suchparametern.
    • Passende Angebote senden wir Dir in einer E-Mail pro Tag.
    • Du kannst auch verschiedene Suchen anlegen und Dich jederzeit abmelden. Mehr dazu
    Nach oben scrollen