Kaufpreis 683.000 €
Zimmer 6
Größe 162 m²
86551 Aichach
Objektdaten
Veröffentlicht am: 25. März 2026
Baujahr: 2025
Energieausweis: Liegt bei der Besichtigung vor
Danke! Bitte bestätige Deine E-Mail-Adresse – wir haben Dir soeben eine Mail geschickt.
Es gab ein Problem beim Absenden. Bitte versuche es erneut.
Bitte bestätige Deine E-Mail-Adresse, um Updates zu erhalten.
Objektbeschreibung
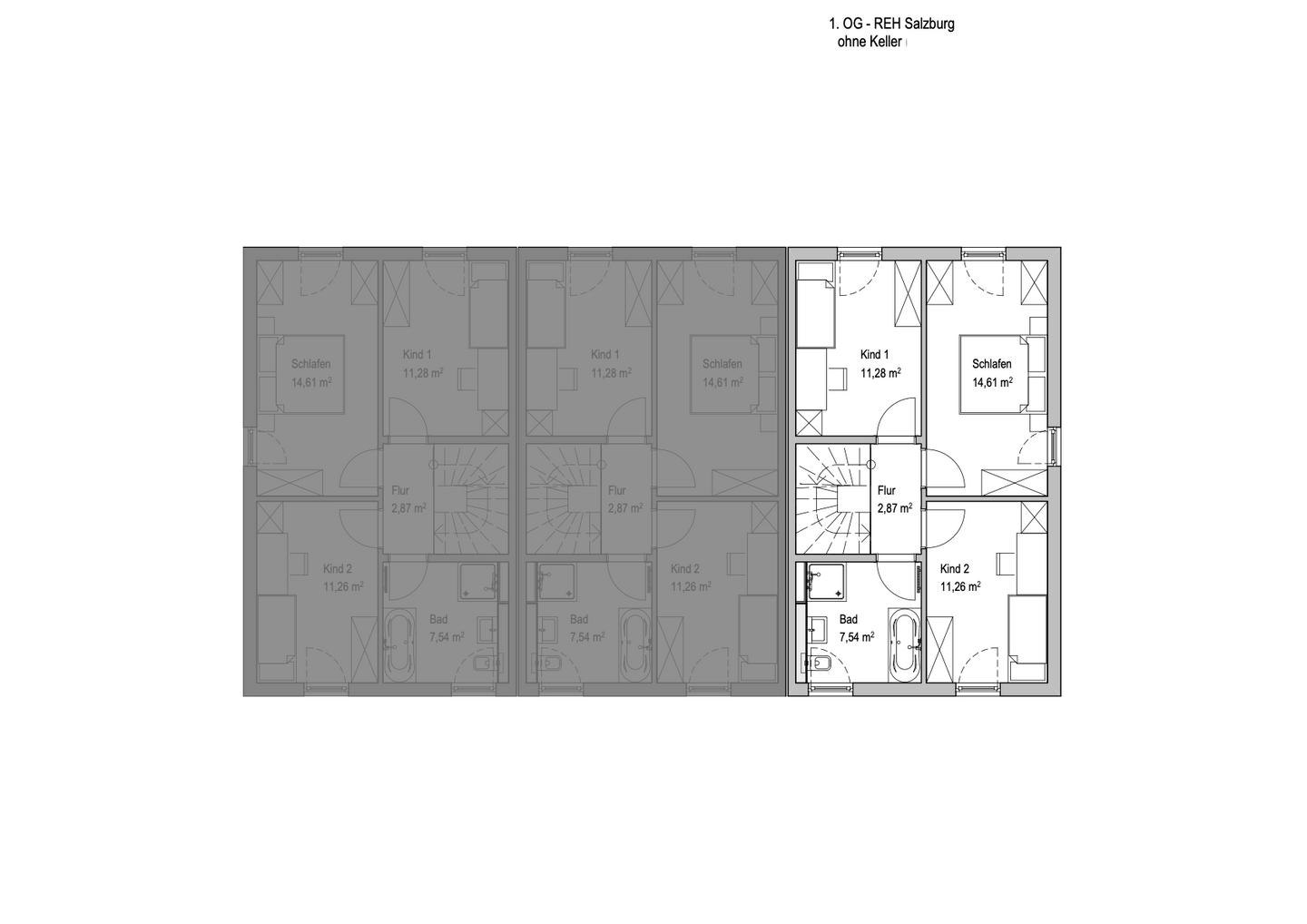
Immobilienprofis.Bayern - DAHEIM STATT NUR ZU HAUSE! IHR REIHENECKHAUS GRUNDSTÜCK WEST - mit Kellergeschoss!Unser Konzept: Modernes Wohnen auf drei Ebenen. Den großzügigen Wohn-Ess-Bereich sowie die Küche finden Sie im Erdgeschoss, ergänzt durch den Garderobenbereich bzw. das Gäste-WC. Wie Sie die zweite Ebene mit drei Zimmern und Ihrem Bad nutzen möchten, das entscheiden Sie selbst. Im Dachgeschoss befindet sich Ihre dritte Wohnebene. An dieser Stelle können Sie sich voll entfalten, ob Arbeitsbereich, Gästebereich oder ein kleines Apartment für die großen Kinder, Ihnen stehen alle Optionen offen.. Behagliches Wohnen für die junge Familie!Im Kellergeschoss des Hauses finden Sie weitere Räume, die Ihnen viel Platz zur Entfaltung bieten. Der große Raum kann beispielsweise als zusätzliches Schlafzimmer, Hobbyraum oder Fitnessstudio genutzt werden.Dabei können auch die Grundrisse noch variabel an Ihre Wünsche und Bedürfnisse angepasst werden.Hier Variante mit Keller: Ihr Keller ist zusätzlich Teil der Wohnfläche mit Heizung, hohen Decken und Tageslicht!* EFFIZIENZHAUS 40, 40 PLUS ODER 55 selbstverständlich möglichSchon in der Grundausstattung:- Massive Bauweise in Ziegel- Freizeit "Plus" Paket- inkl. Terrasse- Rollläden- großer Kellerraum mit Tageslicht- 3-Scheibenverglasung- Fussbodenheizung - Handtuchheizkörper- Lüftungsanlage mit WRG (ab KFW55 zentrales Lüftungssystem)- Luft- Wärmepunpe- Fliesen z.B. von Villeroy & Boch- Aussenwasserhahn (frostsicher)u.v.m...
So funktioniert es
- Alle neuen Anzeigen matchen wir kostenlos mit Deinen Suchparametern.
- Passende Angebote senden wir Dir in einer E-Mail pro Tag.
- Du kannst auch verschiedene Suchen anlegen und Dich jederzeit abmelden. Mehr dazu
Wir haben soeben eine E-Mail mit Deinem Suchauftrag an Dich geschickt. – Klicke in dieser Mail auf den Bestätigungslink und schon geht's los. Prüfe ggf. auch Deinen Spamordner.
Es gab ein Problem beim Absenden Deiner E-Mail-Adresse. Bitte versuche es erneut.
WARNUNG: Bitte bestätige Deine E-Mail-Adresse, um regelmäßige Updates zu erhalten.