Objektdaten
Objektbeschreibung
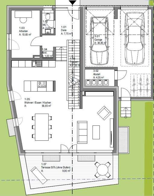
Dieses großzügige Zweifamilienhaus im Bauhausstil bietet eine Gesamtwohnfläche von ca. 220 m² auf drei Etagen und steht auf einem ca. 270 m² großen Grundstück in Frankfurt am Main, im Stadtteil Sachsenhausen. Mit insgesamt 8 Zimmern, darunter 6 Schlafzimmer, 2 Badezimmer und ein Gäste-WC, eignet sich die Immobilie für Familien, Mehrgenerationenwohnen oder als Kapitalanlage mit zwei bis 3 separaten Wohneinheiten.Das Haus verfügt über einen Balkon sowie einen Garten, der nach individuellen Vorstellungen gestaltet werden kann. Z...Weitere Informationen zu dieser Immobilie entnehmen Sie bitte dem Exposé auf unserer Webseite unter: www.dornbusch-immobilien.de Auf Ihre Kontaktaufnahme freuen wir uns.Ähnliche Angebote
So funktioniert es
- Alle neuen Anzeigen matchen wir kostenlos mit Deinen Suchparametern.
- Passende Angebote senden wir Dir in einer E-Mail pro Tag.
- Du kannst auch verschiedene Suchen anlegen und Dich jederzeit abmelden. Mehr dazu




