Warmmiete 621 €
Zimmer 3
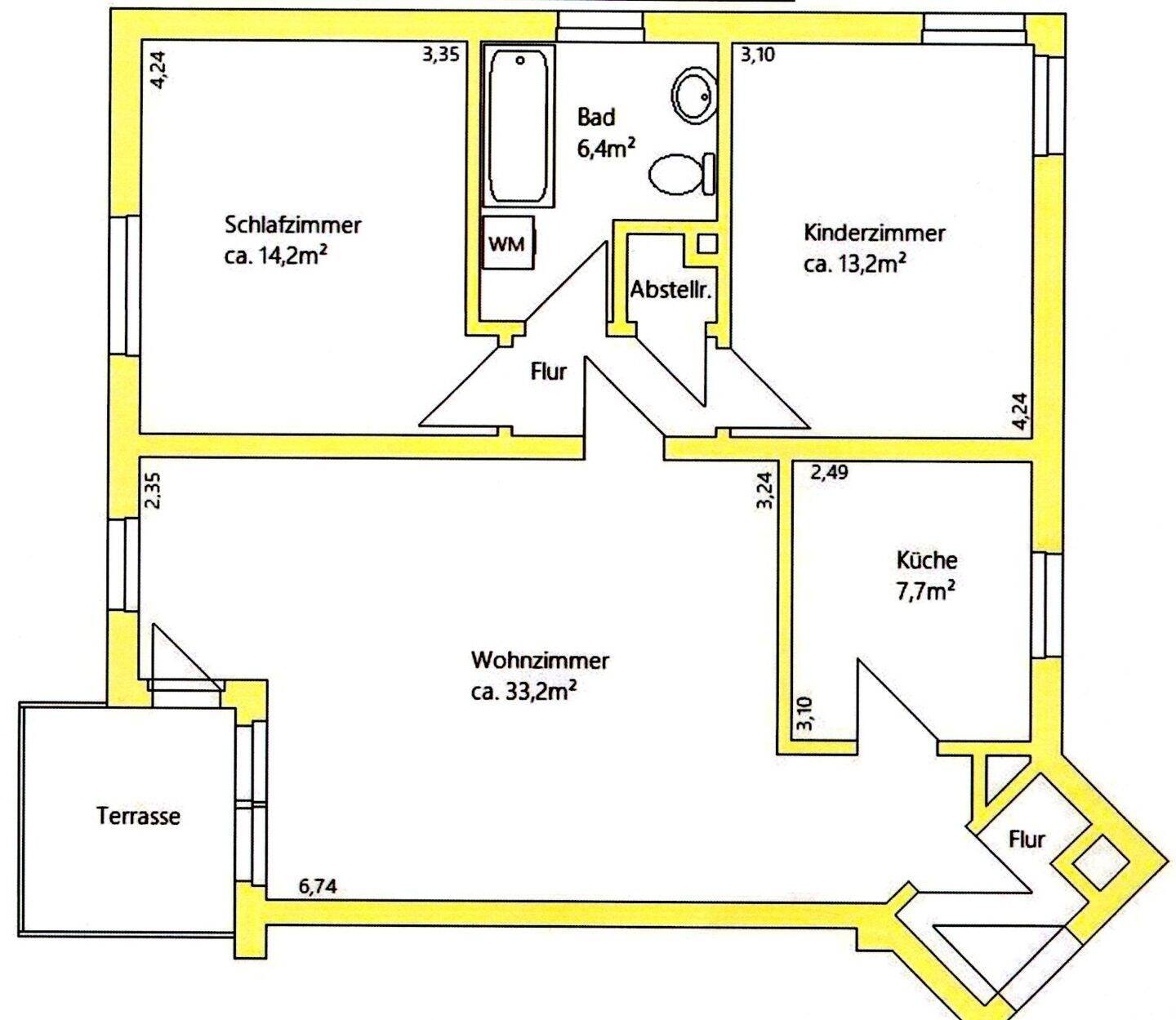
Größe 80 m²
04610 Meuselwitz
Objektdaten
Veröffentlicht am: 25. März 2026
Kaltmiete 421 €
Baujahr: 1994
Energieausweis: Liegt bei der Besichtigung vor
Danke! Bitte bestätige Deine E-Mail-Adresse – wir haben Dir soeben eine Mail geschickt.
Es gab ein Problem beim Absenden. Bitte versuche es erneut.
Bitte bestätige Deine E-Mail-Adresse, um Updates zu erhalten.
Objektbeschreibung
geräumige 3-Raum-Wohnung mit Balkon in gepflegter Wohnlage im Grünen von Meuselwitz, ca. 80,34 m² Wohnfläche, aufgeteilt in kleinen Flur, großes WZ mit Balkon, SZ, Kinderzimmer, separate Küche und Tageslichtbad mit Wanne, zur Wohnung gehört 1 Dachbodenabteil, Parkflächen stehen auf dem Grundstück zur Verfügung!Besichtigung nach Absprache mit Wohnberechtigungsschein möglich!
So funktioniert es
- Alle neuen Anzeigen matchen wir kostenlos mit Deinen Suchparametern.
- Passende Angebote senden wir Dir in einer E-Mail pro Tag.
- Du kannst auch verschiedene Suchen anlegen und Dich jederzeit abmelden. Mehr dazu
Wir haben soeben eine E-Mail mit Deinem Suchauftrag an Dich geschickt. – Klicke in dieser Mail auf den Bestätigungslink und schon geht's los. Prüfe ggf. auch Deinen Spamordner.
Es gab ein Problem beim Absenden Deiner E-Mail-Adresse. Bitte versuche es erneut.
WARNUNG: Bitte bestätige Deine E-Mail-Adresse, um regelmäßige Updates zu erhalten.