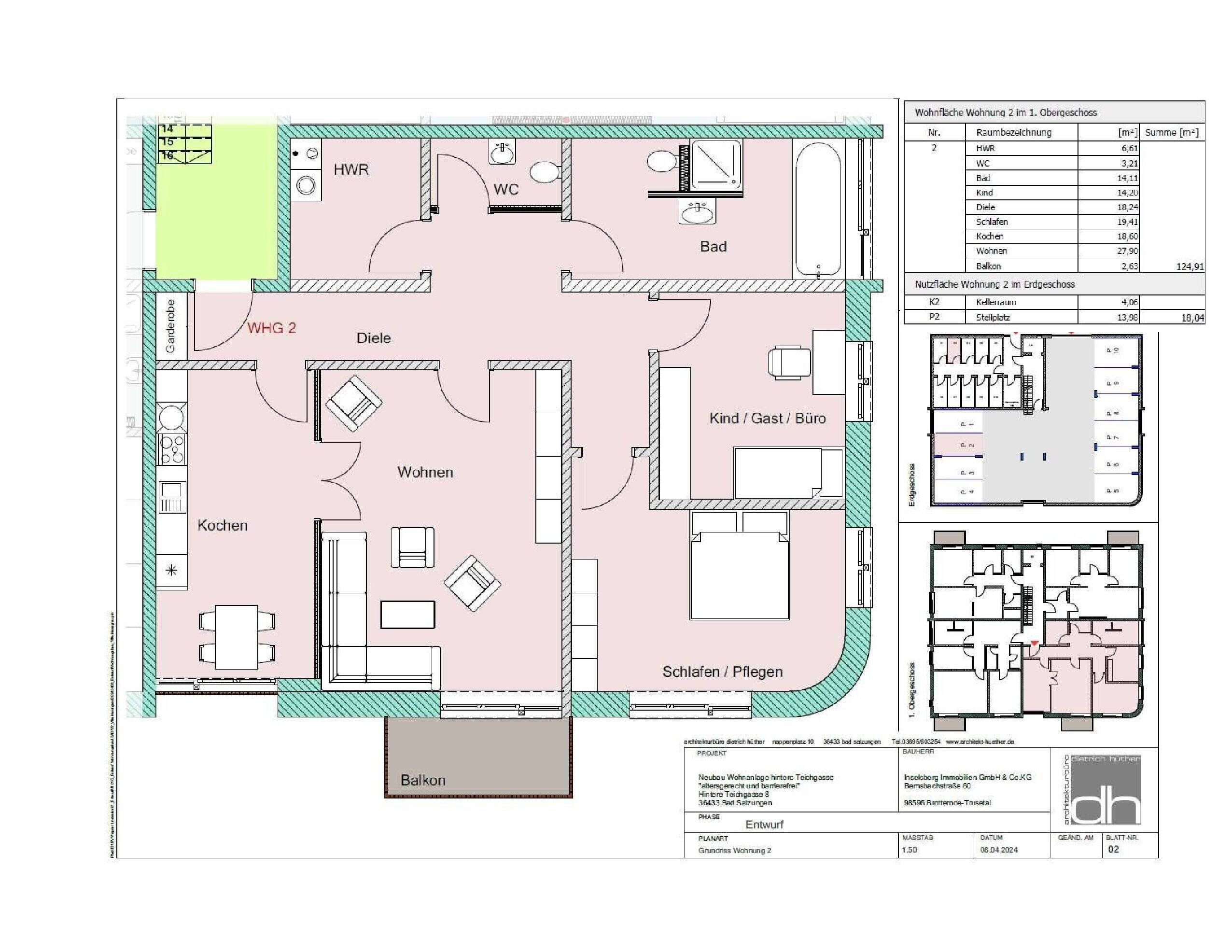
W2 Barrierearmes Wohnen im Alter, mit KfW Förderung, im 1.OG 127,23 m²

Kaufpreis 392.377 €
Zimmer 4
Größe 127 m²
36433 Bad Salzungen

Objektdaten

Veröffentlicht am: 25. März 2026
Baujahr: 2025
Energieausweis: Liegt bei der Besichtigung vor
  • Objektbeschreibung

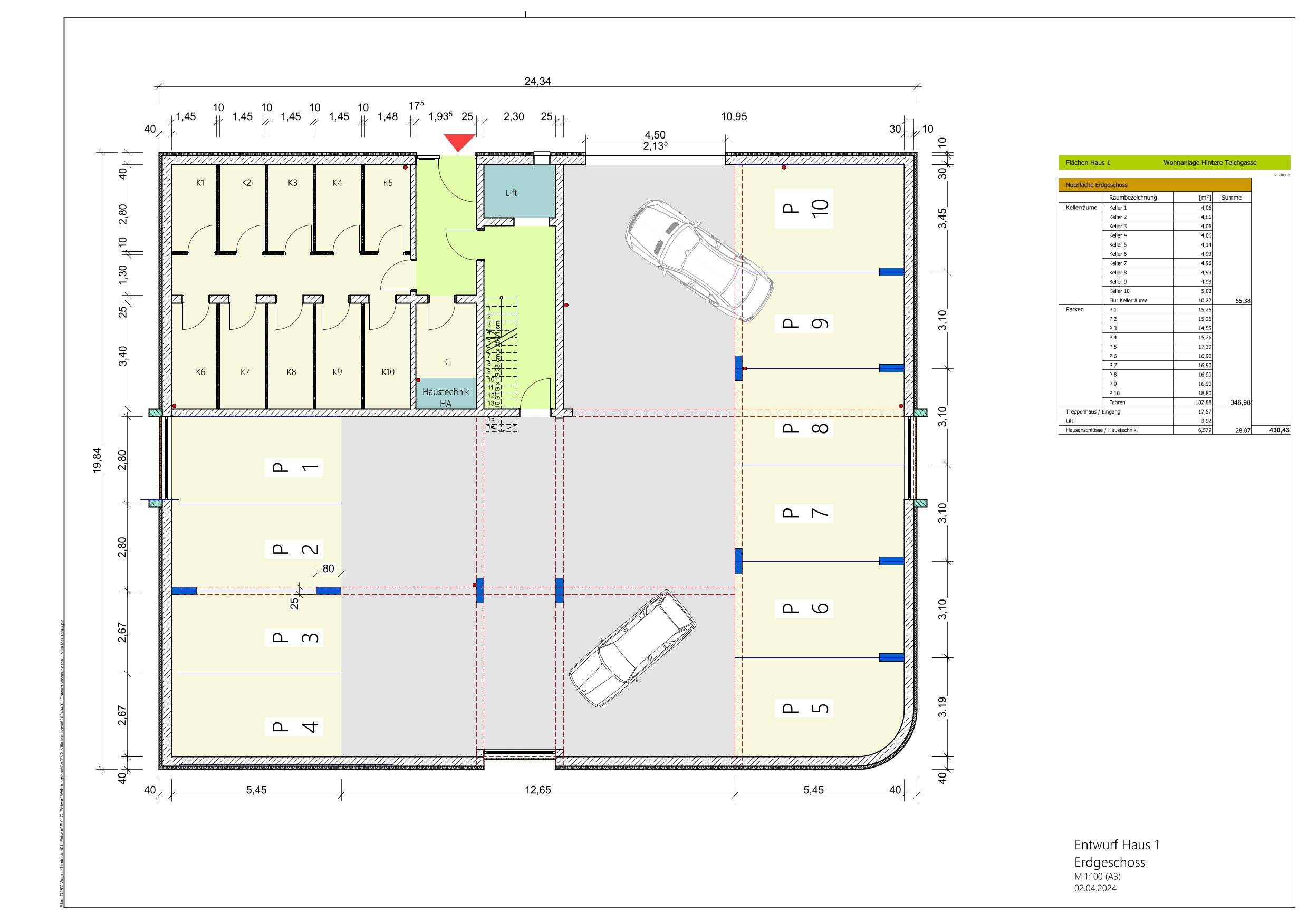
    Objektbeschreibung Vorbemerkungen:Auf dem fast 5.000 m² großen Grundstück, werden 2 Gebäude mit 10 WE geplant. Größe von ca. 75 bis 128 m² Wohnnutzfläche/WE, mit Garage im Erdgeschoss. Da sich die Objekte noch in der Planung befinden, könnten kleine Änderungen im Grundriss noch berücksichtigt werden. Die ausgeführten Arbeiten umfassen alle Leistungen für die bezugs- und schlüsselfertige Erstellung des Gebäudes, zur Nutzung als barrierearmes Wohngebäude und aller erforderlichen Nebenleistungen, wie• Planungs-, Architekten- und Statiker- Leistungen, Baugenehmigungsgebühren • Bauleitung und Objektüberwachung • Vermessungsarbeiten • öffentliche und private Erschließung-, Versorgungs- und Entsorgungsleitungen,- Telefonanschluss und Ausbau mit Glasfaser ist am Standort vorhanden, liegt jedoch nicht im Leistungsumfang der Inselsberg Immobilien GmbH Co. KG !! Nach telefonischer Auskunft liegen zurzeit ca. 500Mb/s.Ausführungsgrundlagen sind die zum Zeitpunkt der Baugenehmigung gültigen Vorschriften der Thüringer Landesbauordnung, sowie die genehmigten Pläne (Maßstab 1:100).vorbehalten sind:• Ausführungspläne Maßstab 1:100 • Statik- und Wärme- Bedarfsbrechung• Maßtoleranzen und technische Änderungen• Erforderliche Änderungen im Grundriss, bedingt durch Statik, Haustechnik- Planung oder durch behördliche Auflagen sind zulässigMit den geplanten Ausführungen, wird der KfW- 40 Niedrigenergie Haus erreicht, welcher im Wärmeschutznachweis nachgewiesen wird. Eine Zertifizierung mit Qualitätssiegel Nachhaltiges Gebäude (QNG) ist nicht enthalten!!Die Gebäude werden im EG mit offenen Stellplätzen und Abstellräumen für jede Wohnung zugewiesen. Im 1. und 2. OG sind die Wohnungen inkl. Balkone. Bei zwei Dachgeschosswohnungen sind große Dachterrassen enthalten. Preise für die Wohnungen richten sich nach der Größe und Lage in den Etagen und liegen nach momentaner Kalkulation zwischen 3.400 und 3.950 €/m².Die parkähnliche Außenanlage ist mit einem Teich versehen und kann von den Eigentümern genutzt werden. Eine detaillierte Bau- und Leistungsbeschreibung wird nach Erstellung der Planung und Auflagen der Behörden erarbeitet. Raumaufteilung Folgt - 2,5 bis 4 Zimmerwohnungen, mit HWR, große Wohnungen mit Gäste- WC, Bäder mit Dusche und/oder Wanne.
    Nach oben scrollen