Objektdaten
Objektbeschreibung
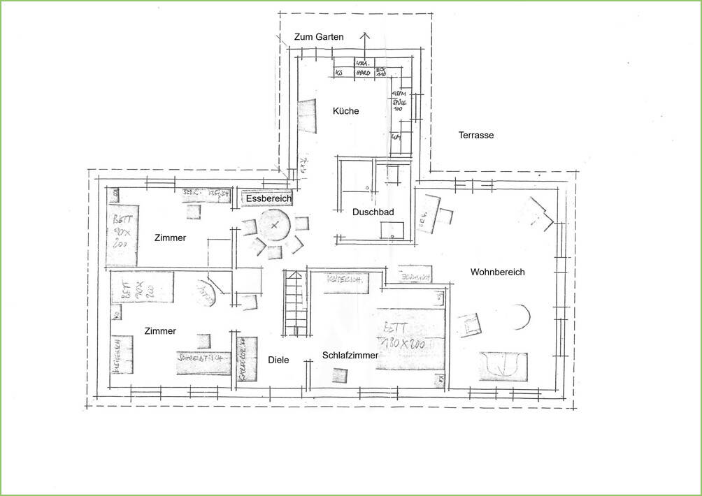
Am Rande der ruhigen, dörflich geprägten Umgebung vom beliebten Wasserkoog liegt dieses charmante Reetdachhaus aus ca. 1860. Ein echtes Kleinod friesischer Baukultur. Behutsam in den Achtzigern modernisiert und mit viel Liebe zum Detail gepflegt, vereint es historischen Charakter mit zeitgemäßem Wohnkomfort.Das Grundstück mit ca. 1.400m² ist ebenso liebevoll gestaltet wie das Haus selbst. Gleichzeitig bestünde hier auch die Möglichkeit noch ein weiteres Haus zu bauen. Gerne übersenden wir Ihnen das vollständige Exposé dieser Immobilie und öffnen Ihnen die Türen bei einem persönlichen Besichtigungstermin. Ein Energieausweis wurde bereits beantragt.Ähnliche Angebote
So funktioniert es
- Alle neuen Anzeigen matchen wir kostenlos mit Deinen Suchparametern.
- Passende Angebote senden wir Dir in einer E-Mail pro Tag.
- Du kannst auch verschiedene Suchen anlegen und Dich jederzeit abmelden. Mehr dazu




