Objektdaten
Objektbeschreibung
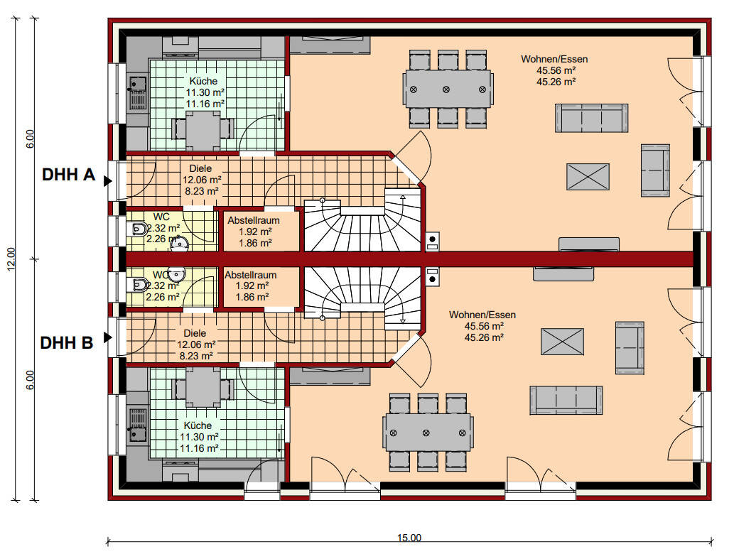
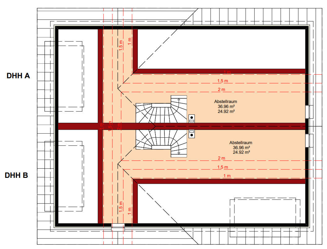
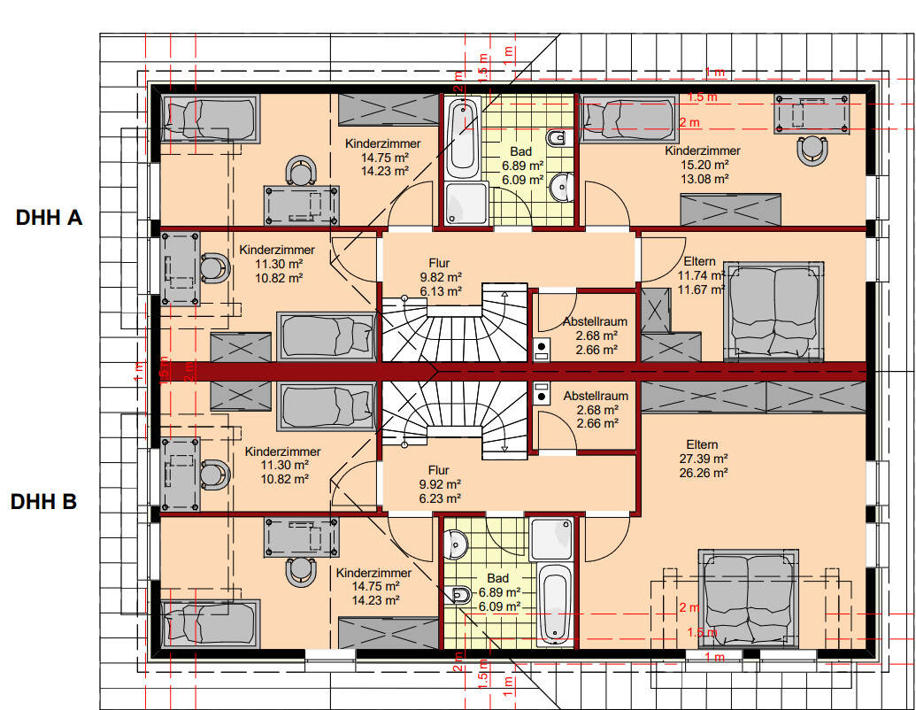
In einer ruhigen, zentralen und vor allem grünen Lage von Osdorf, dürfen wir Ihnen dieses schöne Grundstück präsentieren, auf welchem ein Endreihenhaus und einem Mittelreihenhaus entstehen sollen. Die Gärten versprechen viel Sonne und vor allem Platz für Familien mit Kindern. Die Häuser werden im klassischer Massivbauweise "Stein auf Stein" errichtet, verfügen über ca. 133 m² Wohnfläche im Erd- und Obergeschoss und einen zusätzlichen Abstellbereich im Dachgeschoss von ca. 25 m². Natürlich verfügen die Häuser über eine Luft-Wasser-Wärme-Pumpe, eine PV-Anlage mit Speicher und hochwertigen Außenklinker. Die Fußbodenheizung befindet sich im gesamten Haus.Darüber hinaus ist für jedes Haus ein Außenstellplatz vorgesehen.Der ausgeschrieben Preis beinhaltet bereits das Grundstück und das schlüsselfertige Haus. Klassische Baunebenkosten sind hierbei noch nicht berücksichtigt. Änderungen an den Grundrissen können vorgenommen werden.Ähnliche Angebote
So funktioniert es
- Alle neuen Anzeigen matchen wir kostenlos mit Deinen Suchparametern.
- Passende Angebote senden wir Dir in einer E-Mail pro Tag.
- Du kannst auch verschiedene Suchen anlegen und Dich jederzeit abmelden. Mehr dazu




