Kaufpreis 170.000 €
Zimmer 2
Größe 67 m²
01157 Dresden
Objektdaten
Veröffentlicht am: 26. März 2026
Baujahr: 1995
Energieausweis: Liegt bei der Besichtigung vor
Danke! Bitte bestätige Deine E-Mail-Adresse – wir haben Dir soeben eine Mail geschickt.
Es gab ein Problem beim Absenden. Bitte versuche es erneut.
Bitte bestätige Deine E-Mail-Adresse, um Updates zu erhalten.
Objektbeschreibung
Kurzbeschreibung
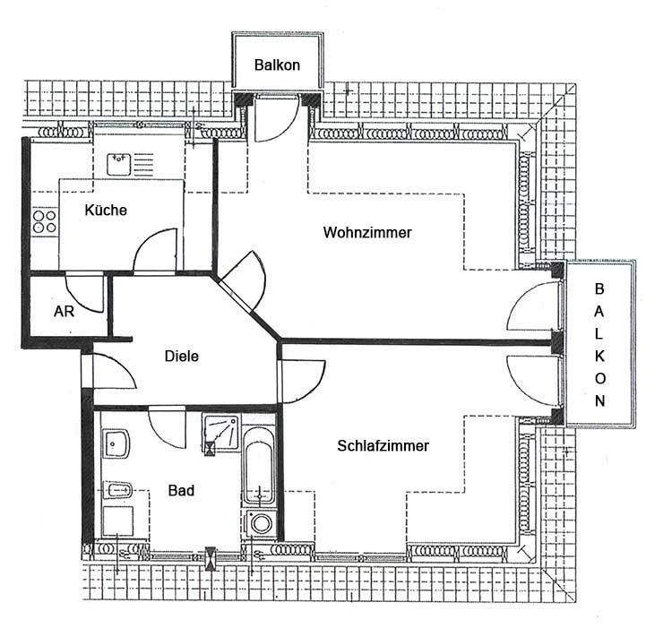
Zum Verkauf steht eine geräumige, helle und sehr gemütliche 2-Zimmer-Dachgeschoss-Wohnung mit ca. 68 m² Wohnfläche / Wohnzimmer, Diele und Schlafzimmer sind mit einem hochwertigen Design-Vinylboden ausgestattet / Fußboden in Küche, Bad und Abstellraum wurde gefliest / abgeschlossene Küche mit großer Durchreiche zum Wohnzimmer / kleiner Abstell-/Vorratsraum innerhalb der Wohnung, an Küche angrenzend / zusätzlich wurde die Durchreiche mit einer Kunststoff-Jalousie ausgestattet / geräumiges Tageslichtbad mit 2 Fenstern sowie Wanne, Dusche, Toilette und Waschbecken zum Wohlfühlen / im Bad befindet sich weiterhin auch ein Waschmaschinenanschluss / 2 Balkone, abgehend jeweils vom Wohnzimmer (Giebelseite und Rückseite des Gebäudes), ausgerichtet sind beide Balkone nach Süden bzw. Südwesten mit einem Traumblick bis in die Weinberge nach Radebeul / Wände und Decken sind mit Raufaser tapeziert und gestrichen / Außenrollläden an den Balkontüren vorhanden / Gaubenfenster / Dachschrägen in den einzelnen Räumen vorhanden, Trempelhöhe liegt bei ca. 50 cm / furnierte Innentüren, zum Teil mit Glasfüllung / keine Durchgangszimmer / Wohnung und TG-Stellplatz sind seit 09/1997 an die jetzige Bewohnerin vermietet / die Wohnung befindet sich in einem sehr gepflegten Zustand / Mieteinnahmen Kaltmiete 500,00 € + TG-Stellplatz 35,00 €
Objekt
ENERGIEAUSWEIS- Energieeffizienzklasse: D- erstellt am: 21.03.2021- gültig bis: 21.03.2031- Art des Energieausweises: nach Verbrauch- Verbrauchskennwert insgesamt: ca. 120,6 kWh/(m²a)- Verbrauch inkl. Warmwasser: ja- Heizungsart: Zentralheizung- Befeuerung: Gas- Baujahr: 1995---------------ruhige und sehr grüne Wohnlage / Stadtrandlage / gelegen im westlichen Stadtbereich von Dresden / kleine Wohnanlage, bestehend aus 6 Wohnhäusern mit insgesamt 59 Wohneinheiten und einer gemeinsamen Tiefgarage (Pkw-Einzelstellplätze) / zwischen den einzelnen Häusern wurde eine Grünfläche mit einem kleinen Kinderspielplatz und einigen Sitzgelegenheiten für die Bewohner angelegt / vom Treppenhaus des jeweiligen Hauses gibt es einen direkten Zugang in die Tiefgarage / Neubau, Baujahr 1995 / leichte Hanglage / eine Eigentümergemeinschaft / Wohngebäude ist vollständig unterkellert / Dachgeschoss wurde komplett zu Wohnzwecken ausgebaut / zur Wohnung gehört weiterhin ein großer Abstellraum im Kellergeschoss sowie ein Pkw- Einzelstellplatz in der Tiefgarage / guter Bauzustand für die gesamte Wohnanlage, kein Erhaltungsrückstau / folgende Arbeiten wurden in den letzten Jahren am Gemeinschaftseigentum durchgeführt: Fassadenanstrich 2016, Erneuerung der Schleißanlage 2017, Erneuerung der Heizungsanlage 2021, Anstrich Treppenhaus 2022 / einzelne Pkw-Stellplätze für Besucher sind im Außenbereich der Wohngebäude zu finden / Dachgeschoss entspricht dem 2. Obergeschoss /
So funktioniert es
- Alle neuen Anzeigen matchen wir kostenlos mit Deinen Suchparametern.
- Passende Angebote senden wir Dir in einer E-Mail pro Tag.
- Du kannst auch verschiedene Suchen anlegen und Dich jederzeit abmelden. Mehr dazu
Wir haben soeben eine E-Mail mit Deinem Suchauftrag an Dich geschickt. – Klicke in dieser Mail auf den Bestätigungslink und schon geht's los. Prüfe ggf. auch Deinen Spamordner.
Es gab ein Problem beim Absenden Deiner E-Mail-Adresse. Bitte versuche es erneut.
WARNUNG: Bitte bestätige Deine E-Mail-Adresse, um regelmäßige Updates zu erhalten.