Objektdaten
Objektbeschreibung
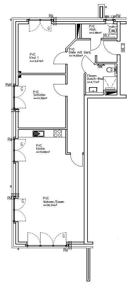
Dieser Neubau wird als KfW-Effizienzhaus 40+ ab November 2025 als Erstbezug fertiggestellt. Das Vierparteienhaus in massiver Bauweise in traditioneller Rotklinkeroptik und Satteldach ist freistehend. Es bestehen jeweils zwei exklusive Wohnungen - im Erd- und im Obergeschoss mit ausgebautem Spitzboden als 2. Wohnebene. Die Wohnungen sind über einen gemeinsamen und modern gestalteten Hauseingang zu erreichen. Die Wohnungen im Erdgeschoss verfügen über eine großzügige Terrasse mit einem praktischen Gartenanteil. Die Wohnungen im Obergeschoss verfügen über einen Süd-West-Balkon - optional wäre ein separater Gartenanteil möglich. Zusätzlich ist jeder Wohnung ein großzügiger PKW-Carport-Platz und ein Außen-Stellplatz zugeordnet - diese werden mit vermietet. Die Beheizung erfolgt zentral über eine Luft-Wärme-Pumpe mit Unterstützung durch die Photovoltaikanlage. Alle Räume sind mit komfortabler Fußbodenheizung ausgestattet. Die 3-fach-verglasten Fenster sind in Kunststoffrahmen gefasst. Ein Glasfaser-Anschluss, auch für TV und Telefon, ist in allen Wohnungen verfügbar, und ist mittels LAN-Verkabelung in die Räume zu verteilen.So funktioniert es
- Alle neuen Anzeigen matchen wir kostenlos mit Deinen Suchparametern.
- Passende Angebote senden wir Dir in einer E-Mail pro Tag.
- Du kannst auch verschiedene Suchen anlegen und Dich jederzeit abmelden. Mehr dazu





