Objektdaten
Objektbeschreibung
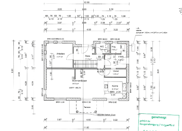
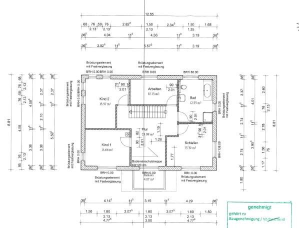
Hier steht ein Baugrundstück für eine 2-geschossige Stadtvilla zum Verkauf.Für das Grundstück besteht ein gültige Baugenehmigung, sie können also umgehend mit dem Bau beginnen.Für die Baugenehmigung wird eine angemessene Pauschale zum Kaufpreis erhoben.Sie können ihre ausführende Baufirma frei wählen, es gibt KEINE Bauträgerbindung.Es handelt sich hier gem. B-Plan um ein Allgemeines Wohngebiet mit eine I-II Vollgeschossen und einer Grundflächenzahl von 0,3 und einer Geschossflächenzahl von 0,5.Ähnliche Angebote
So funktioniert es
- Alle neuen Anzeigen matchen wir kostenlos mit Deinen Suchparametern.
- Passende Angebote senden wir Dir in einer E-Mail pro Tag.
- Du kannst auch verschiedene Suchen anlegen und Dich jederzeit abmelden. Mehr dazu



