Warmmiete 2.100 €
Zimmer 3
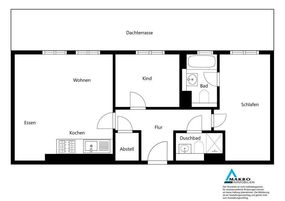
Größe 89 m²
25421 Pinneberg
Objektdaten
Veröffentlicht am: 26. März 2026
Kaltmiete 1.700 €
Baujahr: 2024
Energieausweis: Liegt bei der Besichtigung vor
Danke! Bitte bestätige Deine E-Mail-Adresse – wir haben Dir soeben eine Mail geschickt.
Es gab ein Problem beim Absenden. Bitte versuche es erneut.
Bitte bestätige Deine E-Mail-Adresse, um Updates zu erhalten.
Objektbeschreibung
Die Wohnung in Pinneberg überzeugt durch ihre ideale Lage: Zentral gelegen, aber dennoch in einer ruhigen Wohnumgebung. Restaurants und Geschäfte sind bequem zu Fuß erreichbar. Der Bahnhof ist nur wenige hundert Meter entfernt und bietet schnelle Verbindungen nach Hamburg.Diese Neubauwohnung setzt neue Maßstäbe für stilvolles und urbanes Wohnen. Der ca. 30?m² große Wohn- und Essbereich sowie beide Schlafzimmer sind lichtdurchflutet und überzeugen mit edlem Parkettboden, hochwertigen Zimmertüren, hohen Decken und dreifach verglasten Fenstern. So entsteht ein helles, großzügiges und elegantes Wohnambiente, das selbst höchste Ansprüche erfüllt.Ein besonderes Highlight der Wohnung ist die ca. 50?m² große Dachterrasse in Westausrichtung. Sie bietet den perfekten Rückzugsort, um sonnige Stunden zu genießen und den Abend über den Dächern entspannt ausklingen zu lassen. Der Zugang erfolgt bequem über eine exklusiv angefertigte Stufe.Die Wohnung bietet höchsten Wohnkomfort: ein Bad en Suite mit Fenster, ein separates Duschbad, Fußbodenheizung in der gesamten Wohnung, moderne Handtuchheizkörper und eine Gegensprechanlage mit Video sorgen für ein modernes und angenehmes Wohngefühl. Die zeitlose Einbauküche mit Anschluss für einen Geschirrspüler fügt sich nahtlos in das durchdachte Raumkonzept ein. Ein praktischer Abstellraum mit Waschmaschinenanschluss bietet zusätzlichen Komfort.Ein Tiefgaragenstellplatz, die Möglichkeit zum Anschluss einer Wallbox, ein Personenaufzug sowie E-Bikes zur Ausleihe im Keller runden das Premiumangebot ab. Die Wohnung ist ein Erstbezug nach Neubau, erfüllt den energieeffizienten KfW-55-Standard und ist ab sofort bezugsfertig. Eine Mindestmietdauer von 24 Monaten ist gewünscht. Es wird ein Indexmietvertrag vereinbart.Zur optimalen Visualisierung arbeiten wir teilweise mit gestagten, möblierten Bildern.Weitere Bilder unter: https://bit.ly/42MSu0t3D VIRTUAL TOUR (ungestaged): https://my.matterport.com/show/?m=SfQaoPdWiZB
So funktioniert es
- Alle neuen Anzeigen matchen wir kostenlos mit Deinen Suchparametern.
- Passende Angebote senden wir Dir in einer E-Mail pro Tag.
- Du kannst auch verschiedene Suchen anlegen und Dich jederzeit abmelden. Mehr dazu
Wir haben soeben eine E-Mail mit Deinem Suchauftrag an Dich geschickt. – Klicke in dieser Mail auf den Bestätigungslink und schon geht's los. Prüfe ggf. auch Deinen Spamordner.
Es gab ein Problem beim Absenden Deiner E-Mail-Adresse. Bitte versuche es erneut.
WARNUNG: Bitte bestätige Deine E-Mail-Adresse, um regelmäßige Updates zu erhalten.