Objektdaten
Objektbeschreibung
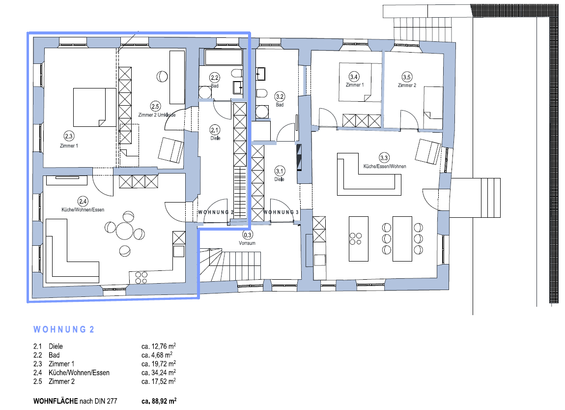
Zur Vermietung steht eine hochwertig sanierte 90 m² große Wohnung in einem denkmalgeschützten Altbau in Wörth an der Donau. Das Gebäude wurde im Jahr 2016 umfassend kernsaniert, wobei besonderer Wert auf Qualität und Nachhaltigkeit gelegt wurde. Sonstiges: Die Wohnung ist ab dem 01.06.2026 bezugsfrei. Die monatliche Kaltmiete beträgt 900,00 € (inkl. zwei Stellplätzen). Zimmer 1 und Zimmer 2 sind durch eine mittig gesetzte Trennwand miteinander verbunden, wodurch sich flexible Nutzungsmöglichkeiten ergeben (z. B. als Wohn- und Arbeitsbereich oder kombinierter Schlaf- und Ankleideraum).So funktioniert es
- Alle neuen Anzeigen matchen wir kostenlos mit Deinen Suchparametern.
- Passende Angebote senden wir Dir in einer E-Mail pro Tag.
- Du kannst auch verschiedene Suchen anlegen und Dich jederzeit abmelden. Mehr dazu





