Kaufpreis 359.000 €
Zimmer 3
Größe 114 m²
49770 Herzlake
Objektdaten
Veröffentlicht am: 27. März 2026
Energieausweis: Liegt bei der Besichtigung vor
Danke! Bitte bestätige Deine E-Mail-Adresse – wir haben Dir soeben eine Mail geschickt.
Es gab ein Problem beim Absenden. Bitte versuche es erneut.
Bitte bestätige Deine E-Mail-Adresse, um Updates zu erhalten.
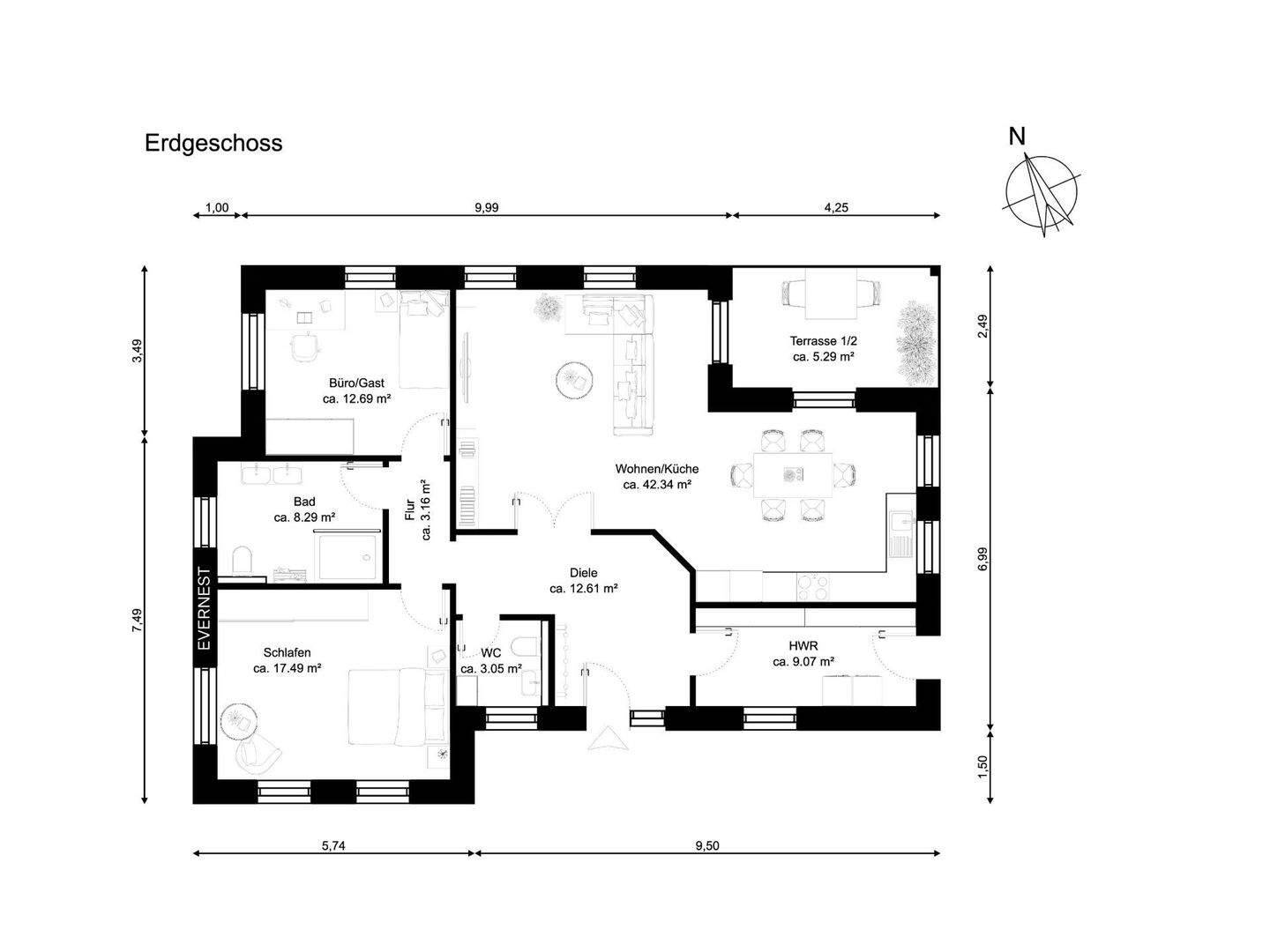
Objektbeschreibung
Der geplante Bungalow überzeugt durch eine klare, ebenerdige Bauweise und eine durchdachte Raumaufteilung. Auf ca. 114 m² Wohnfläche entsteht ein modernes Zuhause, das funktional geplant ist und im Alltag einfach gut funktioniert.Offene Wohnbereiche, viel Tageslicht und eine sinnvolle Struktur sorgen für ein angenehmes Wohngefühl. Die Aufteilung ist so gewählt, dass alle Flächen optimal genutzt werden.Das Haus wird schlüsselfertig erstellt. Für Sie bedeutet das: kein zusätzlicher Abstimmungsaufwand und ein klar definierter Leistungsumfang. Auch die Außenanlagen sind bereits berücksichtigt, die Pflasterung für Zufahrt, Terrasse und Stellplätze ist im Preis enthalten.Gebaut wird nach dem KfW 55 Standard und erfüllt damit aktuelle Anforderungen an Energieeffizienz und Nachhaltigkeit. Damit bestehen grundsätzlich attraktive Möglichkeiten zur Einbindung von KfW Fördermitteln, wodurch sich die Finanzierung zusätzlich optimieren lässt und langfristig geringere Energiekosten unterstützt werden.Die Umsetzung erfolgt durch ein etabliertes Bauunternehmen mit langjähriger Erfahrung im Wohnungsbau und einer Vielzahl erfolgreich realisierter Projekte.Die Planung basiert beispielhaft auf einem Grundstück im Wohnpark Herzlake. Wichtig dabei: Das Grundstück ist im Hauspreis nicht enthalten. Wir haben jedoch verschiedene Grundstücke im Angebot und schauen gemeinsam, welche Fläche am besten zu Ihnen und Ihrem Vorhaben passt.Ihre Vorteile auf einen Blick . Moderner Bungalow mit ca. 114 m² Wohnfläche . Ebenerdige Bauweise . Energieeffiziente Bauweise nach KfW-55-Standard . Durchdachte Grundrissgestaltung . Helle, großzügige Wohnbereiche . Gewachsenes, ruhiges Wohnumfeld . Zukunftssichere und werthaltige Bauweise
So funktioniert es
- Alle neuen Anzeigen matchen wir kostenlos mit Deinen Suchparametern.
- Passende Angebote senden wir Dir in einer E-Mail pro Tag.
- Du kannst auch verschiedene Suchen anlegen und Dich jederzeit abmelden. Mehr dazu
Wir haben soeben eine E-Mail mit Deinem Suchauftrag an Dich geschickt. – Klicke in dieser Mail auf den Bestätigungslink und schon geht's los. Prüfe ggf. auch Deinen Spamordner.
Es gab ein Problem beim Absenden Deiner E-Mail-Adresse. Bitte versuche es erneut.
WARNUNG: Bitte bestätige Deine E-Mail-Adresse, um regelmäßige Updates zu erhalten.